一体化泵站图集

th一体化泵站是什么
图片尺寸640x933
一体化雨污泵站
图片尺寸900x1191
一体化污水提升泵站内部结构说明
图片尺寸1248x623
道路污水改造一体化提升泵站污水雨水洪涝排涝泵站yabz-3000w-7m
图片尺寸750x750
一体化智慧泵站呈现出崭新的面貌.#一体化智慧泵站 #一体化泵 - 抖音
图片尺寸750x750
地埋式一体化预制泵站
图片尺寸800x620
泵站-中蓝泵业一体化泵站-排水泵站
图片尺寸600x847
一体化预制泵站价格预算法则
图片尺寸702x800
六安一体化污水提升泵站总设计说明
图片尺寸1018x689
城市环境处理的好帮手—一体化泵站
图片尺寸500x434
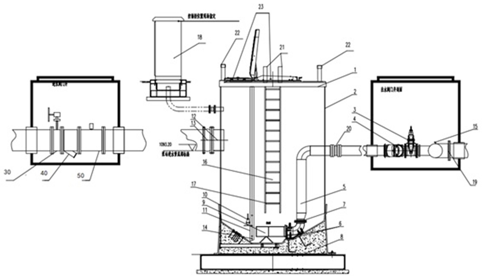
一种一体化预制湿式给水泵站
图片尺寸1619x933
一体化泵站厂家
图片尺寸657x594
小区污水提升泵站
图片尺寸741x520
一体化污水提升泵站图纸说明
图片尺寸943x649
pps型室外一体化泵站
图片尺寸861x787
欢迎来到浙江海弘机电科技有限公司一体化预制泵站厂家
图片尺寸900x560
一体化污水提升泵站厂家cad图纸
图片尺寸818x741
一体式wq泵站
图片尺寸690x412
工业废水处理提升泵站_德诺尔一体化预制泵站
图片尺寸744x760
天子湖大道污水一体化提升泵站设计图纸
图片尺寸760x570