两梯两户

配两梯两户的户型,值!
图片尺寸1645x837
青州金科集美嘉悦 | 两梯两户,给予你舒适的生活尺度
图片尺寸720x509
买一梯两户不如两梯两户?电梯直达入户,门口放鞋柜,物业都管不着!
图片尺寸1100x1556
华达新苑谁能有幸收藏两梯两户纯板式大平层
图片尺寸1080x764
北外滩三大豪宅之一稀缺两梯两户带保姆电梯
图片尺寸1440x1920
两梯两户
图片尺寸580x658
两梯两户
图片尺寸1080x711
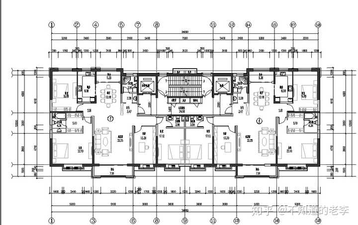
如何从户型图上区别两梯两户和一梯两户?
图片尺寸529x370
两梯两户
图片尺寸516x314
18层的小高层,两梯两户公摊在26.5%算高吗?
图片尺寸720x453
在湛江 有一种难得叫"两梯两户"!
图片尺寸1080x764
碧桂园凤凰城天悦两梯两户电梯入户满二
图片尺寸1080x810
昆明市中心两梯两户大平层双地铁配套
图片尺寸1080x1439
两梯两户得房率高家门口就是19万方的公园
图片尺寸1080x1439
南二环凯旋城两梯两户两室146万无中介费
图片尺寸1080x810
汉口二环两梯两户小高层单价134
图片尺寸1080x943
合生中央城两梯两户四房两厅三卫你觉得怎样
图片尺寸800x653
同一楼盘,为何"两梯两户"先卖完,而"一梯一户"却少有人买?
图片尺寸1404x993
155㎡两梯两户16f小高层 四室两厅两卫 155
图片尺寸800x438
两梯两户的真实感受
图片尺寸600x350