人防门框墙钢筋图集

07fg04钢筋混凝土门框墙
图片尺寸1885x1315
07fg-04钢筋混凝土门框墙
图片尺寸982x689
让你彻底学会人防门框墙钢筋算量附图纸
图片尺寸906x590
人防门框墙配筋问题-服务新干线答疑解惑
图片尺寸1524x949
人防门框在结构砼底板浇筑前的门框预埋 - 抖音
图片尺寸1080x2340
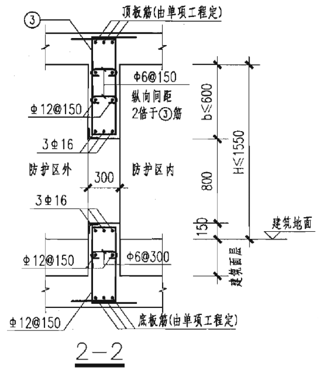
老师们看下人防门框墙上部构造的拉筋在图集中显示的纵筋间距2倍于3筋
图片尺寸948x595
让你彻底学会人防门框墙钢筋算量附图纸
图片尺寸569x879
人防门框墙
图片尺寸452x633
让你彻底学会人防门框墙钢筋算量,附图纸
图片尺寸554x652
07fg04钢筋混凝土门框墙
图片尺寸1861x1290
人防门框墙及洞口配筋图
图片尺寸1417x598
某6级防护密闭门框墙配筋节点构造详图
图片尺寸826x580
人防门框墙
图片尺寸1349x894
计算原则: (1)钢筋混凝土门扇荷载按双向受力形式作用到门框墙上 (2)
图片尺寸986x691
让你彻底学会人防门框墙钢筋算量,附图纸
图片尺寸547x632
地下室人防门框墙钢筋怎么设置
图片尺寸1447x875
人防门框墙墙肢水平筋
图片尺寸1192x874
人防门框如何处理?
图片尺寸962x588
让你彻底学会人防门框墙钢筋算量,附图纸
图片尺寸640x397
人防门框墙活门槛
图片尺寸1221x870