今日美术馆平面图

今日美术馆
图片尺寸1418x1000
景德镇江西画院美术馆设计 | 筑境设计
图片尺寸1080x660
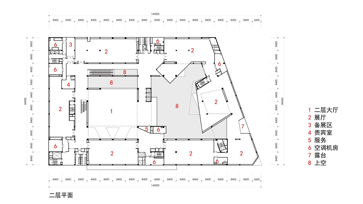
山东美术馆 / 同济大学建筑设计研究院,三层平面
图片尺寸1582x890
美术馆展厅平面图设计图片赏析
图片尺寸4961x3508
青岛市美术馆总平面图
图片尺寸2667x2000
今日美术馆
图片尺寸1418x1000
三层平面图63 剖面图63 模型项目信息项目名称:沭阳美术馆项目
图片尺寸2000x2582
山东美术馆平面图
图片尺寸1500x843
我馆概况-湖南美术馆
图片尺寸1020x710
今日美术馆新馆
图片尺寸675x661
活动很棒听东方好故事做世界小公民
图片尺寸1047x703
今日美术馆户外导示设计
图片尺寸3000x2121
山东美术馆 / 同济大学建筑设计研究院,1.5层平面
图片尺寸1582x890
宝龙美术馆
图片尺寸2472x1086
一层平面▲ 二层平面建筑概况▽项目名称:湖北宜昌一二美术馆主馆
图片尺寸2000x1637
案例转译展览类建筑冯大中艺术馆
图片尺寸970x1024
金贝尔美术馆:光的演奏
图片尺寸2048x1071
52138㎡山东美术馆李立
图片尺寸1200x675
今日美术馆新馆
图片尺寸649x659
西安美术馆2号展厅平面图联系方式▼地址:西安曲江新区大唐不夜城雁塔
图片尺寸1280x731