农村三房一厅设计图

10x10米,三层新中式农村别墅 92房屋概况 编号: dc0984 层数: 三层
图片尺寸1169x1280
农村自建房三室一厅图,家庭人口不多的首选
图片尺寸640x641
自建房3室1厅2卫1厨160.00㎡户型图
图片尺寸800x600
农村三间一层别墅户型农村自建别墅别墅设计图一层别墅
图片尺寸720x1280
一层自建平房设计图以及户型图平面图展示农村三室小别墅平房设计图
图片尺寸750x760
自建房三室一厅
图片尺寸800x800
南方农村正三间房设计图,简单实用,农村自建好选择
图片尺寸640x690
036平方米左右美观大气的农村简单一层三间平房小户型别墅设计图,占地
图片尺寸1000x971
9室3厅设计,农村人盖新房,这算基本合格线吧?
图片尺寸640x572
同面宽11.7米,2栋完美型三层别墅,十年后照样火
图片尺寸640x624
头条问答 - 宽10米深12米的农村小平房,三房一厅主卧带厕所,怎么设计
图片尺寸640x741
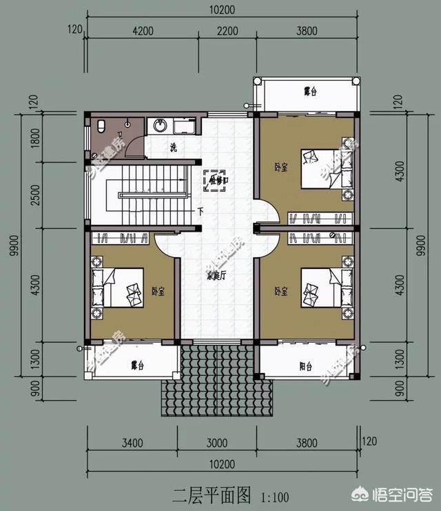
二层设计高度3.3米,室内布局设置三室一厅一卫带阳台.
图片尺寸640x1064
农村别墅#小户型一层三间平房别墅图,主体毛坯仅8万,简洁实用适合
图片尺寸1080x1920
简单耐看,是农村自建房根本追求,浮夸不入流的设计很失败
图片尺寸640x606
农村平房三室一厅平面设计图(要图片)
图片尺寸999x1294
郊区自建房 108方三室一厅
图片尺寸800x800
自建房,求三室一厅一厨一卫户型
图片尺寸800x800
自建房3室0厅0卫0厨131.00㎡户型图
图片尺寸800x800
10x12米农村中式别墅,车库加酒窖高端配置,全村第一豪华!
图片尺寸567x746
头条问答 - 宽10米深12米的农村小平房,三房一厅主卧带厕所,怎么设计
图片尺寸588x562