升的标准尺寸图片

姒桀油桶200升桶汽油桶柴油桶冷轧钢定制油桶加厚桶200l大铁桶装饰桶
图片尺寸500x699
领豫矿泉水桶空桶189升家用手提式15升大号饮用水机pc食品级纯净水桶
图片尺寸790x1501
男裤尺码对照表34 男的2尺7是几码?
图片尺寸600x266
斗式提升机(th系列)
图片尺寸922x575
大通依维柯汽车专用5吨龙门举升机 商务车检修大举升机 发送全国
图片尺寸1357x1920
200升塑料桶k1款式(200升大开口桶)介绍
图片尺寸546x748
尺寸图全
图片尺寸846x2200
五升食用油尺寸
图片尺寸650x360
斗式提升机料斗尺寸图
图片尺寸640x477
ne提升机斗式提升机垂直输送机
图片尺寸1712x1920
特厚油桶5l10升20l30升40l60升汽油桶大小备用油箱柴油壶汽车油桶
图片尺寸750x3713
移动四轮液压升降机剪叉式升降平台8米电动高空作业维修车
图片尺寸592x800
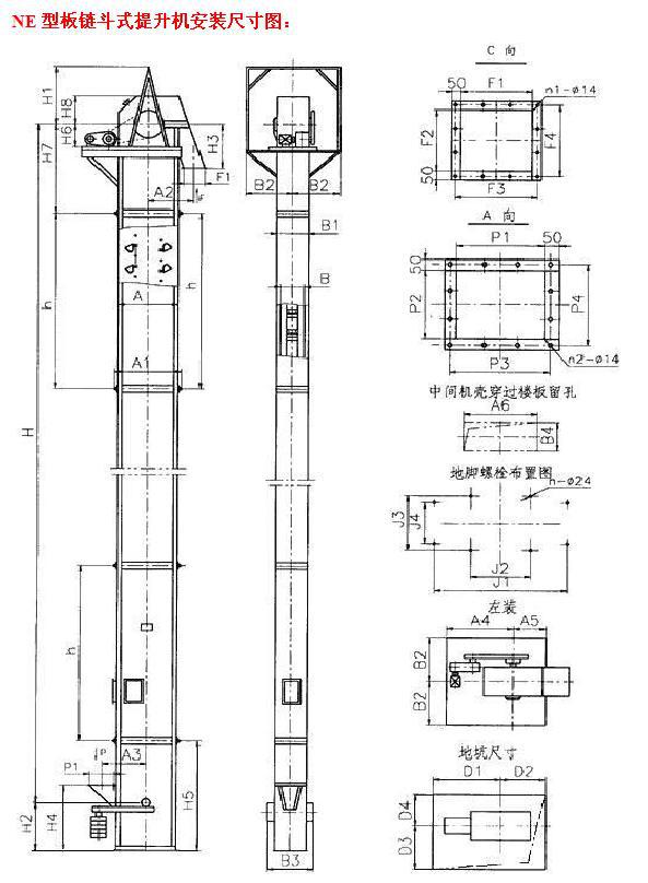
ne型板链斗式提升机安装尺寸图
图片尺寸593x808
td提升机 参数.jpg
图片尺寸750x450
新型ne提升机
图片尺寸950x702
移动式升降机常规尺寸参数
图片尺寸653x498
斗式提升机安装尺寸图
图片尺寸632x401
c435四柱举升机尺寸.jpg
图片尺寸960x1340
供应汽车电梯,汽车提升机,汽车升降机-上海scan
图片尺寸550x380
宁波套缸式升降机移动式高空作业平台电动液压登高车升降平台
图片尺寸1920x1185