半逆作法

盖挖半逆作法步骤图,非常形象
图片尺寸760x469
ta 的直播间轮播中更多漫画创作公开课!
图片尺寸1500x1061
逆作法施工原理
图片尺寸560x444
逆作法
图片尺寸1080x810
半逆作法
图片尺寸1458x905
地下工程逆作法施工方法
图片尺寸760x570
逆作法施工技术
图片尺寸1080x810
大型超深基坑逆作法施工ppt
图片尺寸1080x810
逆作法动画演示ppt
图片尺寸1080x810
逆作法施工技术ppt
图片尺寸1080x810
.
图片尺寸1000x1404
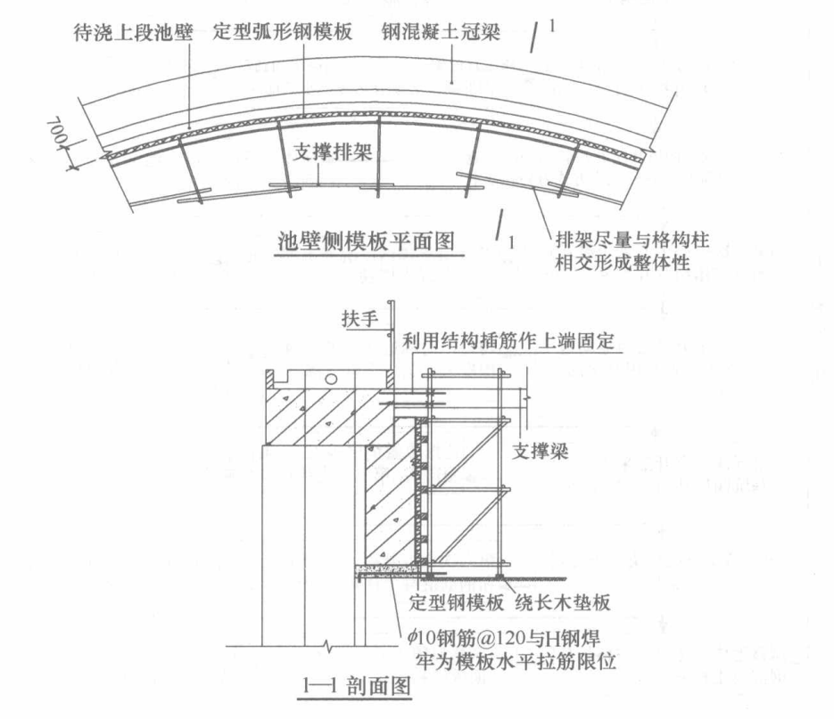
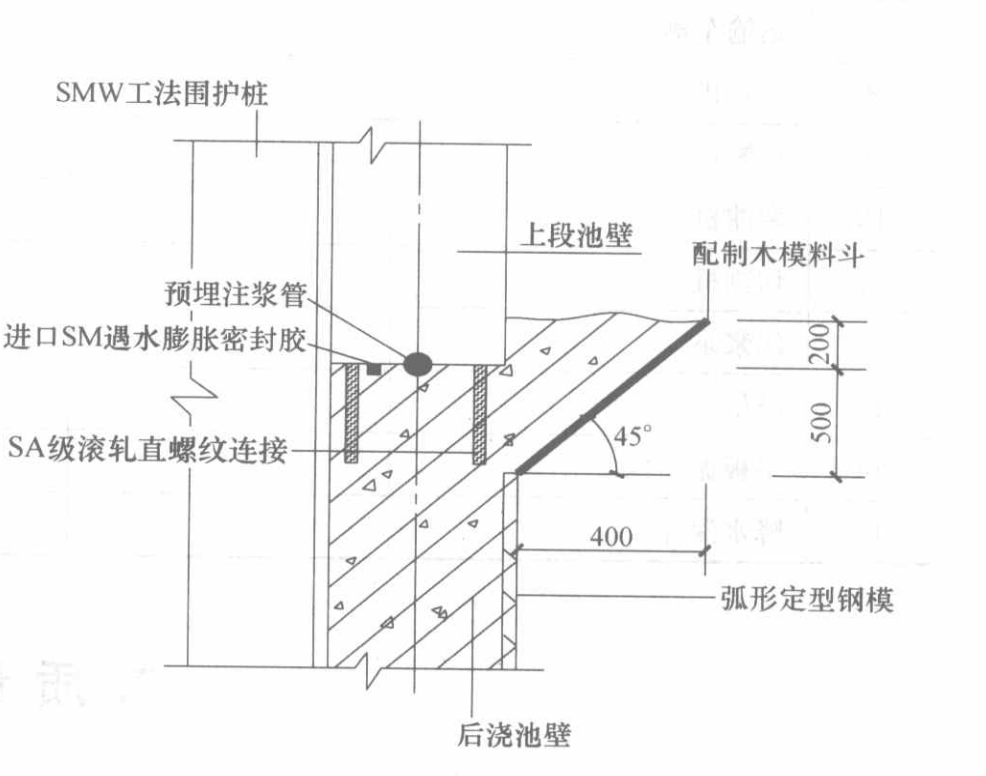
40m直径雨水调蓄池半逆作法施工工法
图片尺寸986x776
江维杰展现超越ai认知的人类巅峰屠龙术,终结朴廷桓成都不败金身
图片尺寸640x741
高层建筑多层地下室结构逆作法施工工法
图片尺寸945x732
40m直径雨水调蓄池半逆作法施工工法
图片尺寸935x807
基坑工程逆作法的特点
图片尺寸800x841
把1/6写成形如1/m 1/n(m大于或等于n,m,n为
图片尺寸224x417
盖挖顺作法盖挖逆作法盖挖半逆作法
图片尺寸535x309
深基坑逆作法施工案例学习开挖示意图很清晰
图片尺寸866x439
【分享】超深基坑逆作法施工案例,看过都说好
图片尺寸545x727