厨房水电安装布置图

一个90后对生活很有追求和品质的小姐姐家厨房水电位.
图片尺寸2560x1280
厨房水电干货|插座92预留电路图 厨房水电插座92电路图 82如果
图片尺寸963x1280
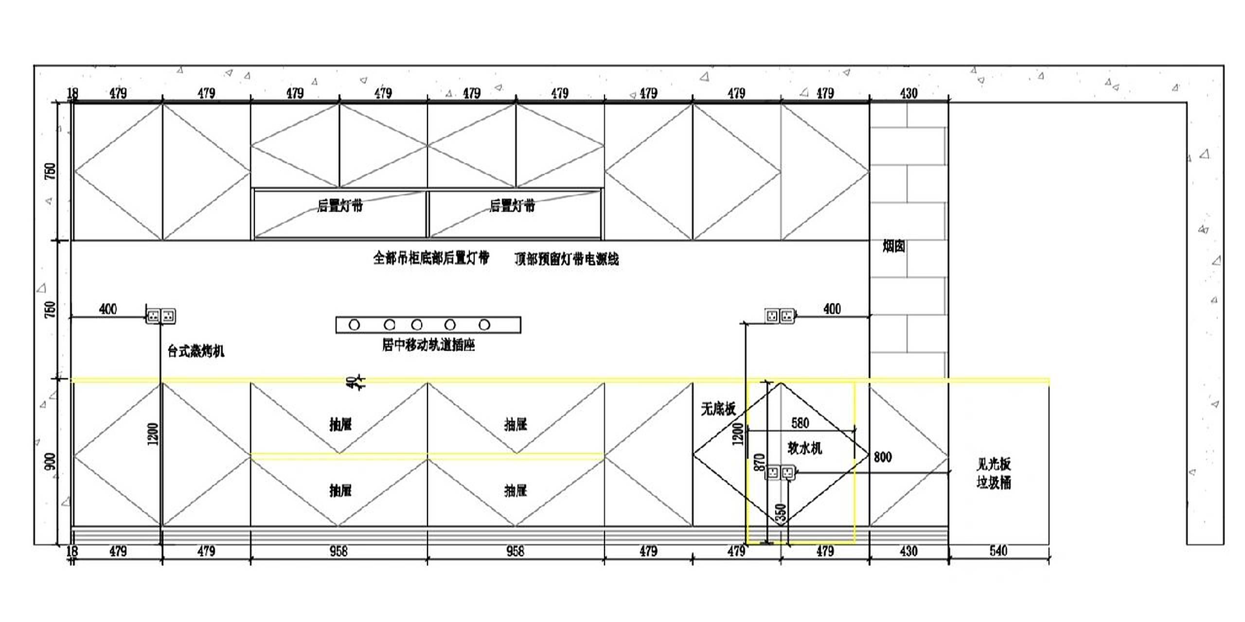
厨房水电案例分享 厨房设计方案
图片尺寸1080x845
厨房水电
图片尺寸843x792
家居水电点位就要酱紫布置 你家水电走对了吗?
图片尺寸550x328
厨房,卫生间,阳台的的水电位预留和心得·『总体原则』水电开工之前
图片尺寸1080x1439
厨房是交错着众多水电管道的"风险"地带,大家在装修时一定要多多注意
图片尺寸640x498
一个90后对生活很有追求和品质的小姐姐家厨房水电位.
图片尺寸2560x1280
给水走向图是关于厨房,卫生间等处的给排水线路的布置图,给水管的的
图片尺寸500x409
水电进场的关键时刻到了厨房水管走明管还是暗管
图片尺寸500x370
厨房水电教学吧那就
图片尺寸1080x666
金厨厨房水电规划布局图
图片尺寸1080x540
装修水电材料如何选购?
图片尺寸600x450
房子装修,分享厨房水电改造攻略,特别是嵌入蒸烤箱安装
图片尺寸640x853
厨房橱柜如何优化设计之水电布局
图片尺寸720x409
做水电的过程中,将热水器的位置改动了一下,这样橱柜吊柜可以更大一些
图片尺寸800x610
现代风格厨房cad橱柜水电
图片尺寸3390x4590
厨房规划一文读懂,所有细节都在这里!
图片尺寸1080x720
第二次装修坚持9条最接地气的厨房决定只为能轻松做懒人
图片尺寸650x437
厨房橱柜如何优化设计之水电布局
图片尺寸720x479