厨房洗手盆安装示意图

厨房台盆的几种安装方式 图一是三种台上盆,台中盆,台下盆的安装方式
图片尺寸961x1280
欧琳oulin水槽双槽台上台下盆厨房洗菜盆双槽加厚304不锈钢820x450
图片尺寸790x632
厨房水槽陶瓷洗菜盆超大洗衣台下盆单槽水池长方形阳台台上盆包邮
图片尺寸750x569
陶瓷盆浴室柜专用盆中边盆洗手盆双盆面盆现代简约欧式饰丽居2055
图片尺寸790x439
陶瓷立柱式洗脸盆复古艺术台盆室外立柱盆一体落地式卫生间洗手盆款式
图片尺寸790x1157
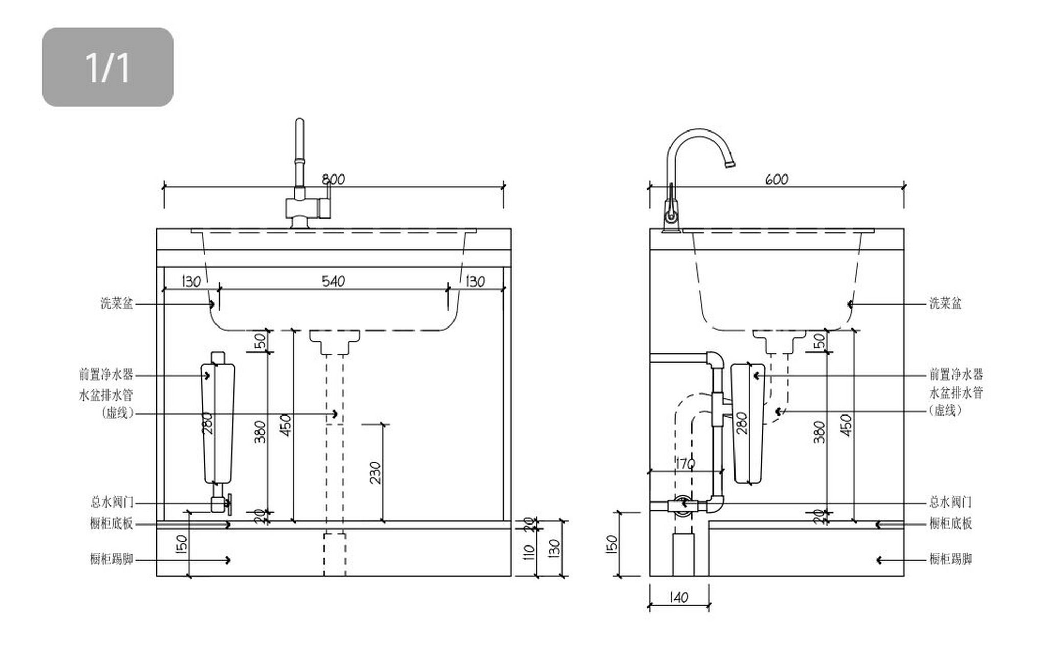
关于橱柜洗菜盆区域的尺寸与设计点 今天分享橱柜洗菜盆的设计要点
图片尺寸2069x1280
景德镇陶瓷台盆台上洗脸盆洗手盆艺术台盆卫生间一体陶瓷盆
图片尺寸750x457
九朗艺特价直销弹簧管厨房龙头洗菜盆水龙头全铜混水龙头宝马卫浴
图片尺寸755x594
赵宋 中欧式地中海仿古圆形台中盆陶瓷台上盆台下艺术盆洗手盆
图片尺寸790x1136
annwa/安华卫浴 家用陶瓷台下洗手盆nt41/ap4333
图片尺寸1920x1357
唯德堡518卫生间洗脸盆立柱盆洗手盆洗手池洗面盆陶瓷盆厂家批发
图片尺寸671x547
东鹏卫浴嵌入式台下盆洗脸盆家用陶瓷盆浴室洗手盆
图片尺寸750x585
安华卫浴实木浴室柜组合卫生间洗脸盆卫浴柜洗漱台组合套装
图片尺寸750x1311
厨房台盆下水安装方法 厨房台盆下水安装示意图
图片尺寸486x550
时尚家装洗手盆陶瓷立柱盆洗衣池阳台卫生间一体落地洗手台洗脸盆厕所
图片尺寸790x1060
台下盆安装节点
图片尺寸600x522
彩金台上盆面盆陶瓷圆形洗脸盆浴室洗手盆
图片尺寸750x625
景德镇陶瓷洁具 台盆 洗手盆 方形台上盆 面盆 印花厂家批发
图片尺寸750x824
台中盆半嵌入式面盆椭圆形台下盆16-22寸陶瓷洗脸洗手盆台上盆 16寸
图片尺寸750x603
oem洗脸盆龙头台盆面盆单孔冷热精铜主体水龙头台上盆配软
图片尺寸750x629