双柱

双柱立式车床
图片尺寸1241x1111
西属玻利维亚 双柱大银币 美国pcgs评级xf45
图片尺寸900x1200
暖气片家用钢制二柱加厚散热器挂式集中供暖彩钢双柱立式壁厚18可定制
图片尺寸800x1033
西班牙双柱银币一枚(00066)
图片尺寸1000x1316
双柱立式车床
图片尺寸2592x1728
请问双柱独立基础顶部钢筋怎么画
图片尺寸1169x581
立车双柱立式车床c5225hot设备名称立
图片尺寸1080x1439
广联达画独立基础双柱怎么画
图片尺寸500x213
二手双柱数控立车
图片尺寸1080x1080
双柱独立基础顶部受力筋长度怎么计算是用双柱边沿算长度还是独基最
图片尺寸845x452
出售优质二手普通双柱立车4米齐齐哈尔
图片尺寸1280x960
齐齐哈尔5米双柱立车型号dvt5002532
图片尺寸860x1146
这种双柱独立基础我这要定义是对的么
图片尺寸600x567
君道9米双柱式铝合金升降机厂家
图片尺寸700x1244
已完工的双柱墩
图片尺寸760x512
03墨戳全品1808年玻利维亚双柱8r
图片尺寸500x493
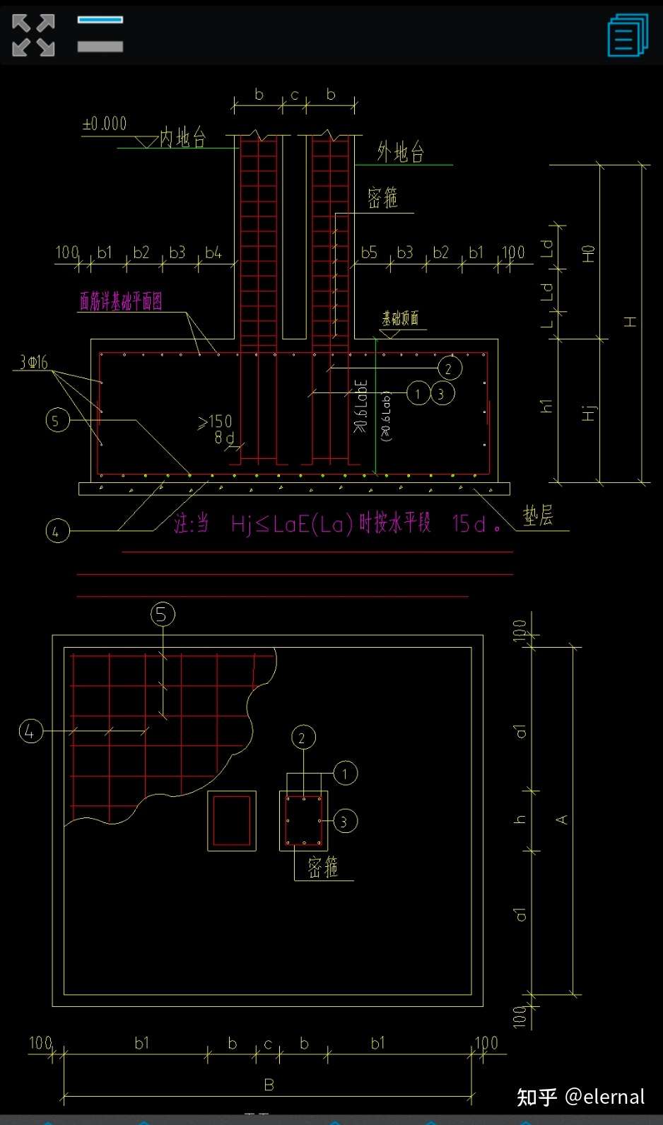
elernal 的想法: 想请问一下,这个双柱独立基础里面底部和… - 知乎
图片尺寸938x1591
双柱铝合金式升降平台
图片尺寸800x1036
森诺按需定制双柱铝合金升降机双柱铝合金登高车
图片尺寸750x674
稀少1790年西班牙过渡双柱(三世头像四世名字)
图片尺寸1152x648