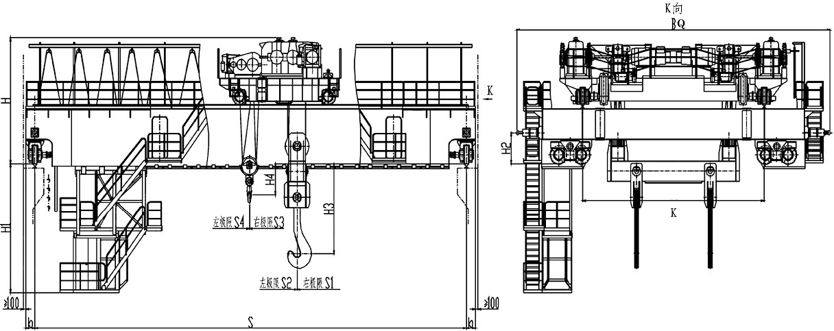
双梁桥式起重机结构图

qd型双梁桥式起重机
图片尺寸1157x602
变频器在双梁桥式起重机上的应用
图片尺寸497x281
一种低净空双梁桥式起重机制造技术
图片尺寸1000x639
双梁桥式起重机 防爆双梁起重机 山东qd型桥式起重机
图片尺寸700x461
电机与电气控制技术 一,桥式起重机 的主要结构和运动形式 桥 式 起
图片尺寸1080x810
电机与电气控制技术 一,桥式起重机的主要结构和运动形式 桥 式 起 重
图片尺寸1080x810
桥式起重机机构设计
图片尺寸980x494
专业生产双梁桥式起重机 50吨双梁悬挂行车
图片尺寸1104x1218
5m箱形双梁桥式起重机主梁及端梁设计2d图机械cad素材
图片尺寸1447x906
电动双梁桥式起重机qd205ta6电气图纸3
图片尺寸1440x1020
5t双梁桥式起重机小车起升机构设计ppt 贾学济
图片尺寸1080x810
桥式起重机结构示意图.jpg
图片尺寸521x290
yz型双梁铸造桥式起重机 河南矿山矿源
图片尺寸1216x483
向烟台莱山龙口供应lh型5-32吨电动葫芦双梁行车双梁行吊起重机
图片尺寸1003x1202
qe型双梁双小车桥式起重机结构图
图片尺寸1345x635
电气控制技术及应用项目5桥式起重机的电气控制
图片尺寸1080x810
双梁行车桥式起重机ld型电动双梁起重机欧式双梁起重机
图片尺寸750x370
圣起牌dc电磁双梁桥式起重机
图片尺寸666x484
吊钩双梁桥式起重机结构图
图片尺寸750x325
qz型双梁抓斗桥式起重机结构图
图片尺寸1331x563