反硝化滤池图纸

某中大型污水厂反硝化深床滤池全套工艺图
图片尺寸880x880
一种新型反硝化深床滤池反应系统的制作方法
图片尺寸930x1000
新型反硝化深床滤池处理装置的制作方法
图片尺寸938x1000
cn108467113a_高效反硝化滤池在审
图片尺寸1638x1167
反硝化深床滤池设计详图
图片尺寸806x747
反硝化深床滤池设计详图
图片尺寸804x742
某地区大型污水厂反硝化滤池设计图纸
图片尺寸610x432
深度处理阶段反硝化脱氮图纸2分492470上传于:2019-01-21 13:46:16
图片尺寸610x432
反硝化滤砖 反硝化深床滤池除氮 污水处理配件厂家定制
图片尺寸1193x853
反硝化滤池- 环保图纸 - 沐风网
图片尺寸536x429
高效反硝化滤池的制作方法
图片尺寸1000x716
高含氮污水处理厂提标改造上向流式反硝化滤池
图片尺寸643x345
反硝化深床滤池设计- 引调水工程图图纸 - 沐风网
图片尺寸361x464
新型反硝化深床滤池处理装置
图片尺寸1268x1350
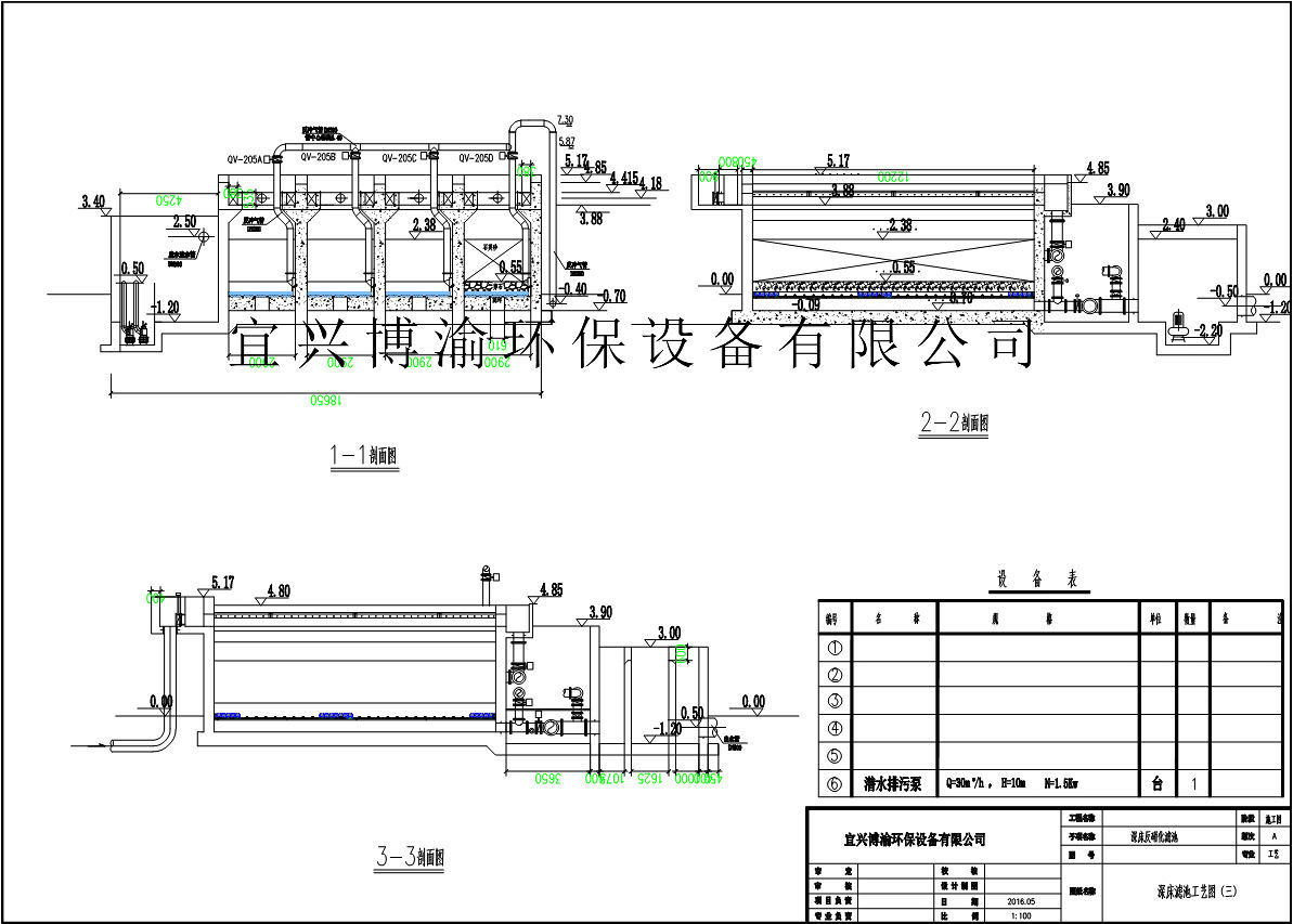
6万吨深床反硝化滤池工艺图
图片尺寸610x426
反硝化滤池- 环保图纸 - 沐风网
图片尺寸542x449
反硝化深床滤池 - 环保图纸 - 沐风网
图片尺寸542x383
反硝化深床滤池2万方每天- 引调水工程图图纸 - 沐风网
图片尺寸820x580
6万吨深床反硝化滤池工艺图
图片尺寸610x430
反硝化生物滤池中生物膜量与脱氮效果和脱氢酶活性的关系
图片尺寸1575x967