变风量阀工作原理图片

大连定风量阀_定风量阀_奇百川(在线咨询)-天助网
图片尺寸525x700
暖通空调风阀功能特点及工作原理_资料
图片尺寸960x720
vav变风量系统|文丘里阀_变风量文丘里阀_变风量碟阀-深圳连合实验
图片尺寸640x303
vav变风量系统|文丘里阀_变风量文丘里阀_变风量碟阀-深圳连合实验
图片尺寸715x546
变风量空调系统
图片尺寸682x263
vav变风量系统|文丘里阀_变风量文丘里阀_变风量碟阀-深圳连合实验
图片尺寸314x396
变风量空调系统控制
图片尺寸500x282
变风量文丘里阀
图片尺寸721x567
【vav变风量系统】深圳江森vav box供应 节能环保vav变风量系统设计
图片尺寸652x460
通过电动风阀可调节混风比例.此模式的优点为
图片尺寸580x239
变风量空调系统的控制|静压|风阀|送风机_新浪新闻
图片尺寸698x259
变风量末端(vavbox)——带有控制器,传感器,风阀,box箱体及其他辅助
图片尺寸640x392
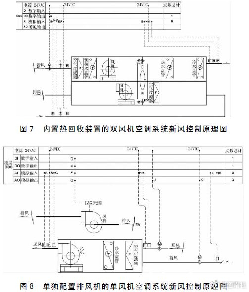
加深对新风机组自动控制的认识 2,学习新风机组自动控制的方法和原理
图片尺寸888x366
vav变风量空调系统基础知识
图片尺寸640x462
实验室通风柜的位置选择注意点有哪方面考究
图片尺寸1006x518
实验室通风设计|文丘里阀_变风量文丘里阀_变风量碟阀-深圳连合实验
图片尺寸364x382
变风量文丘里阀
图片尺寸380x231
双风道变风量系统
图片尺寸760x568
变风量空调系统控制
图片尺寸503x591
风力发电机组变流器基本原理
图片尺寸446x259