商住一体房屋设计图

24.8m × 18m 河北涿州商住 - 抖音
图片尺寸3000x3520
商住一体化设计,16×17米平屋顶三用农村别墅,上面住房,楼下商铺,还可
图片尺寸1080x1724
七层临街自建房,商住两用,外观大气.#农村自建房设计 #临街 - 抖音
图片尺寸1440x2560
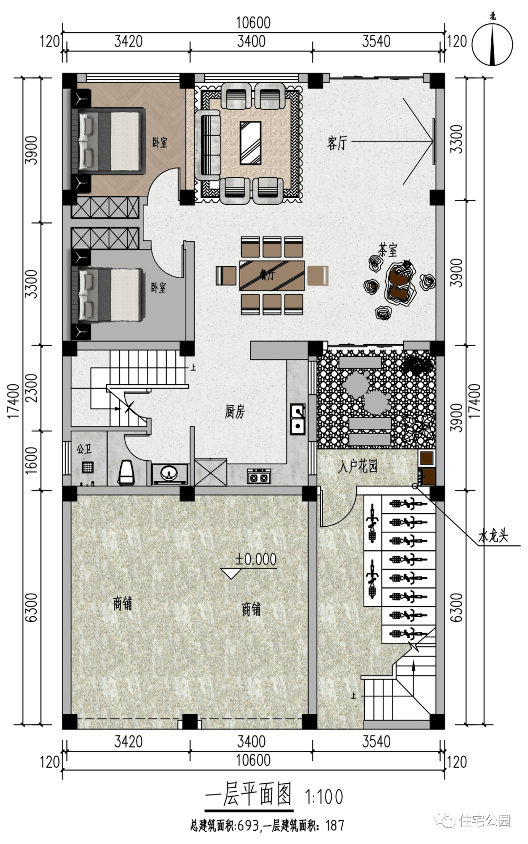
商住两用沿街商铺自建房别墅,10套带商铺设计农村别墅,回乡建一栋超值
图片尺寸800x822
商住一体化别墅设计案例分享!开间23.6,进深15.占地36 - 抖音
图片尺寸1920x1218
商住一体化设计,16×17米平屋顶三用农村别墅,上面住房,楼下商铺,还可
图片尺寸1080x1724
临街商住楼
图片尺寸1080x1529
农村自建房临街别墅,商住两用,安居又乐业.这个项目的宅基地面 - 抖音
图片尺寸1080x1440
9x15m商住楼外观造型设计,如何呢?#乡村建筑设 - 抖音
图片尺寸1440x1800
本期为大家带来一款商住两用的现代别墅
图片尺寸1200x1200
造价40万新中式农村商住两用四层自建房设计图
图片尺寸1200x900
农村临街自建房,一楼设计大商铺,二三层自住,实现开店当老板
图片尺寸2000x1875
可以商住两用的两层简欧别墅
图片尺寸720x1280
广东潮汕‖六层半商住两用自建房(附平面)
图片尺寸1280x1675
沿街商住楼,有喜欢的吗?#农村自建房 #广东 #别墅设计 - 抖音
图片尺寸1810x1280
农村别墅设计之商业自住两用现代别墅,精明的老板都爱它!
图片尺寸2928x1786
10套临街商住两用农村自建房别墅,商铺门面房别墅生活生意两手抓
图片尺寸640x1011
商住楼2000m2,一年可以收租多少钱.不规则地皮设计#农村 - 抖音
图片尺寸1242x2688
商住两用沿街商铺自建房别墅,10套带商铺设计农村别墅,回乡建一栋超值
图片尺寸900x1001
商住一体化设计,16×17米平屋顶三用农村别墅,上面住房,楼下商铺,还可
图片尺寸1080x608