图纸简单
 - 农村简单设计_cad图纸下载-土木在线图片尺寸1240x1753
 - proe图纸图片尺寸910x646
 - 求一套简单点的二层居民楼建筑图纸,平面图立面图抛面图都得有,类似图片尺寸600x450
 - 农家家里装修,求热心认识帮忙设计一个简单卧室平面图.内详图片尺寸335x429
 - 这两座简单的二层建筑设计图使你满意! - 轩鼎房屋图纸图片尺寸640x657
 - 一套简单的别墅建筑设计方案图共9张图片尺寸610x861
 - cad绘图教程实例练习图纸图片尺寸750x565
 - 图纸简单介绍图片尺寸513x446
 - 图纸简单介绍图片尺寸515x754
 - 一种简易立体停车库设计【含cad图纸,说明书】图片尺寸839x594
 - 简易拉压试验机的设计【含6张cad图纸和文档资料】【gc系列】图片尺寸1200x800
 - 九十平米农村房屋图,小宅基地也能建起来_盖房知识_图纸之家图片尺寸650x924
 - 简单实用新农村自建房 - 图纸下载 - 建筑师圈图片尺寸897x632
 - 简单别致的别墅建筑施工图(含设计说明)_图纸设计说明_土木在线图片尺寸551x610
 - 一套简单实用独栋新农村住宅小楼建筑cad设计图纸图片尺寸610x861
 - 简易机械翻土车总图(套图)下载_工业/农业机械_机械图纸 - 机械5图片尺寸257x381
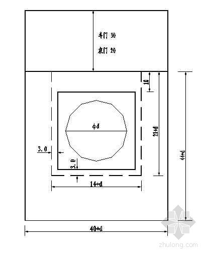
 - 简易斗农门典型设计图-水利工程图纸-筑龙水利工程论坛图片尺寸406x505
 - 仅南方可见,120平三层简单农村房屋,只要25万_盖房知识_图纸之家图片尺寸640x717
 - 简易上下双人床 - 家具家装图纸 - 沐风网图片尺寸820x508
 - 仿徽派四层简单新农村房屋设计图纸适合农村自建图片尺寸640x802