圆形基础配筋图讲解

圆形筏板基础钢筋怎么布置,圆形剪力墙钢筋怎么布置
图片尺寸1249x748
11g101-1圆箍筋的搭接长度为多少
图片尺寸527x482
圆形柱子在广联达中怎么画
图片尺寸533x391
这个圆承台gtj2021建模钢筋如何绘制
图片尺寸2407x1275
圆形筏板基础钢筋为环行分部钢筋怎样布置
图片尺寸691x715
圆形烟囱基础钢筋怎么布置
图片尺寸453x438
圆形箍长度应按箍筋外皮圆周长 ,加35 d 的搭接长度,再加两个 135&
图片尺寸1080x810
圆形筏板基础布置钢筋
图片尺寸3264x2448
圆形加强筋问题
图片尺寸1209x821
环形钢筋
图片尺寸644x691
圆水池钢筋的配料做法
图片尺寸624x832
圆形底板的钢筋总长度如何计算
图片尺寸439x462
圆形基础筏板怎样配筋?
图片尺寸6961x4677
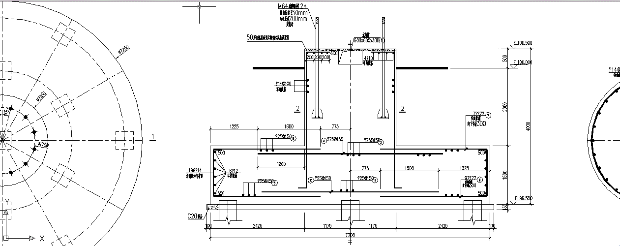
圆形独立基础钢筋的定义方法?
图片尺寸1261x500
做一个直径为4,5米的圆形水泥预制板,用44条钢筋成网状铺设,每条钢筋
图片尺寸583x569
圆形筏板放射筋布置
图片尺寸1159x718
请教这种圆形基础的钢筋的计算式或者如何建模
图片尺寸684x674
圆形桩承台有圆形环状箍筋以及径向钢筋的,如何绘制呢,请指教
图片尺寸800x811
圆形筏板基础布置钢筋
图片尺寸805x607
请问这种圆形的板的筋要怎么才可以布上去
图片尺寸1057x554