地基尺寸

皖安qjy4.0双柱式举升机地基图.jpg
图片尺寸960x1356
合肥皖安c435汽车平板四柱举升机,地基尺寸图
图片尺寸960x1398
优耐特ub30y举升机地基图
图片尺寸800x1000
7.4 ×11米地基 图纸
图片尺寸423x600
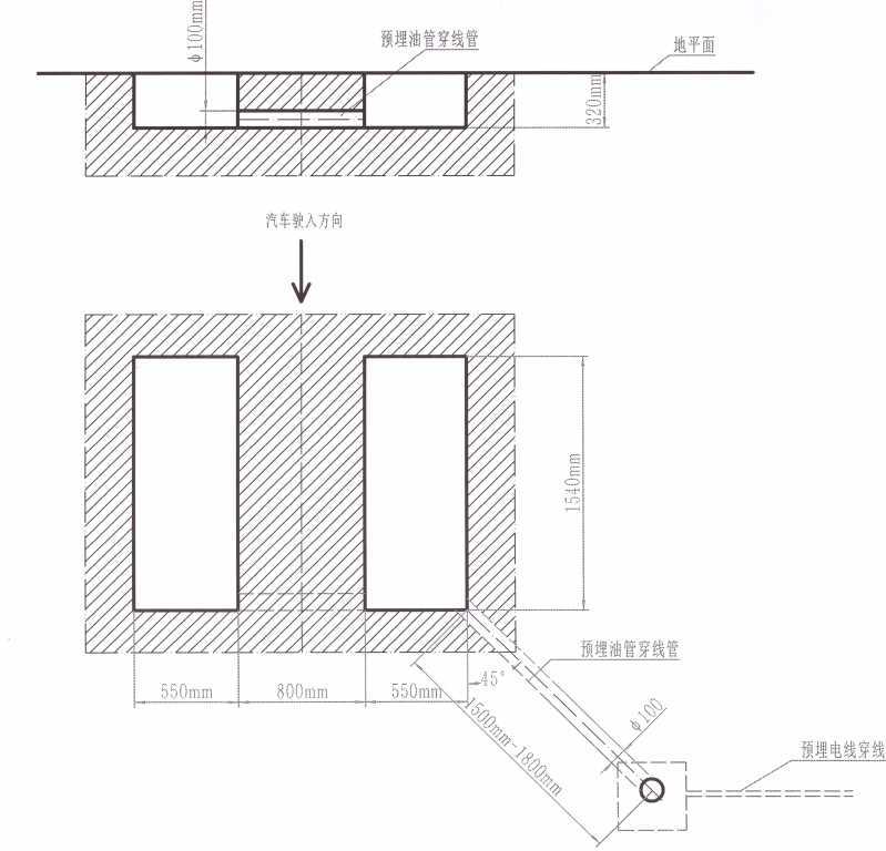
0m-m4举升机地基图
图片尺寸800x1132
qdtyd-bg22001-4m30 单头特色仿古庭院灯地基基础图纸
图片尺寸700x977
罗茨风机地基安装图
图片尺寸487x602
天然地基上的浅基础设计
图片尺寸1280x720
地基基础设计等级为丙级,采用墙下钢筋混凝土条形基础,基础尺寸如图
图片尺寸548x657
地基图
图片尺寸799x768
山东公司设计创新工作室价值工程篇二cfg桩复合地基设计优化
图片尺寸922x441
优耐特小剪e30举升机地基图
图片尺寸713x676
求农村四间三层楼房设计图,地基坐北朝南,长3.7*4=14.
图片尺寸1600x1280
我家山区自建房 框架 砖混 两种结构,特殊型地基,求指导建议.
图片尺寸701x817
怎样做数控铣加工中心卧式加工中心龙门加工中心地基图
图片尺寸838x592
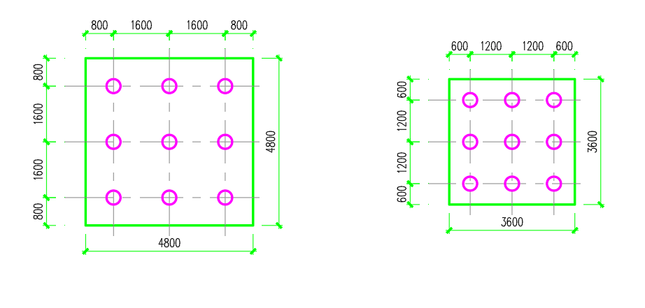
设备安装地基具体尺寸见图3-6
图片尺寸602x594
地基
图片尺寸750x570
4m×0.5m,基础尺寸,埋深及地基条件见图1-7-13.
图片尺寸610x347
题20~24:某建筑物设计使用年限为50年,地基基础设计等级为乙级,柱下
图片尺寸583x704
农村混凝土钢筋框架式4层房子地基一般需要多深 多大尺寸的,面积是17m
图片尺寸1095x603