壳体图纸

图纸来了:壳体.#图纸 - 抖音
图片尺寸1416x2048
壳体cad 二维图纸
图片尺寸2879x2066
eq140汽车转向器壳体零件图
图片尺寸1889x1335
取力器壳体 图纸
图片尺寸1095x774
读壳体零件图并回答问题.
图片尺寸849x857
水泵壳体
图片尺寸2339x1653
a0变速箱壳体产品图pdf
图片尺寸800x566
a3-微电机壳 零件图.pdf
图片尺寸800x566
壳体涡轮图纸参数图纸id: 1047195图纸格式:dwg图纸版本:autocad2007
图片尺寸820x1184
1机壳零件图pdf
图片尺寸800x568
读喷雾器壳体零件图回答问题6868
图片尺寸644x540
z3050摇臂钻床壳体盖机加工工艺设计
图片尺寸1200x800
壳体cad图纸
图片尺寸673x471
壳体-a3.dwg
图片尺寸1200x800
蜗轮壳体加工工艺h面与4-m5夹具设计 - 设计方案图纸 - 沐风网
图片尺寸820x580
左臂壳体零件图
图片尺寸893x463
差速器壳体钻36与8-10.2孔夹具设计 - 设计方案图纸 - 沐风网
图片尺寸767x585
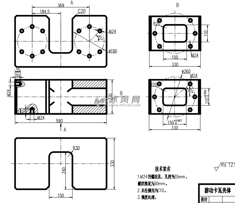
游动卡瓦壳体图纸参数图纸id: 1027254图纸格式:dwg图纸版本:autocad
图片尺寸801x692
gj180-壳体零件加工工艺及从底部钻底面4-Φ7孔夹具设计【含cad图纸
图片尺寸1200x800
122 x5020b立式升降台铣床拔叉壳体工艺规程制订(论文 图纸)
图片尺寸839x594