密斯的建筑作品平面图

大师作品分析:史密斯住宅
图片尺寸640x725
无忧文档 所有分类 工程科技 建筑/土木 史密斯住宅各平面图1
图片尺寸717x610
大师作品分析:史密斯住宅
图片尺寸1000x571
大师作品分析史密斯住宅
图片尺寸1000x1140
史密斯住宅平面
图片尺寸2484x1754
「国美考研」建筑师之密斯·凡德罗,带你了解密斯的建筑艺术之路!
图片尺寸1031x667
史密斯住宅资料cadsuppt论文视频等等等
图片尺寸1400x1138
「国美考研」建筑师之密斯·凡德罗,带你了解密斯的建筑艺术之路!
图片尺寸1077x656
密斯凡德罗理念在建筑设计中的表达分析
图片尺寸941x583
无忧文档 所有分类 工程科技 建筑/土木 史密斯住宅各平面图1第1页 下
图片尺寸674x610
密斯设计的巴塞罗那馆平面
图片尺寸640x315
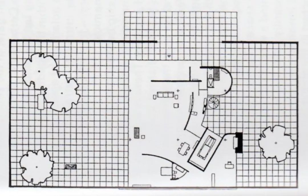
原创 史密斯住宅分析(建筑大师作品分析课程)ppt
图片尺寸1080x810
求史密斯住宅平面,带功能标注的
图片尺寸500x409
密斯曾在亚琛的建筑师艾伯特·施奈德(albert schneider)事务所做过
图片尺寸491x535
崇高建筑论——密斯·凡德罗与北方浪漫主义邂逅
图片尺寸500x401
大师作品分析:史密斯住宅
图片尺寸1000x1162
从哈贝住宅看密斯的院落设计思想_建筑
图片尺寸1080x533
从哈贝住宅看密斯的院落设计思想_建筑
图片尺寸1080x688
史密斯住宅 建筑平面分析
图片尺寸1080x810
无忧文档 所有分类 工程科技 建筑/土木 史密斯住宅各平面图1
图片尺寸676x641