巴氏计量槽图集

国润环保废水排放304不锈钢巴氏计量槽bx5
图片尺寸750x1467
巴氏计量槽参数对照表.pdf 2页
图片尺寸804x1137
水利工程用巴氏计量槽
图片尺寸827x749
巴歇尔槽参数对照表.pptx 2页
图片尺寸952x1347
th990m污水流量计巴歇尔槽
图片尺寸627x582
厂家直销 超声波明渠流量计 污水流量计 巴歇尔槽
图片尺寸750x958
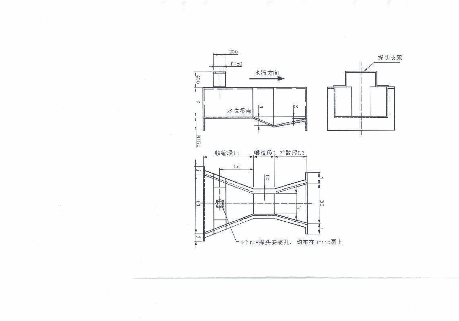
巴歇尔槽设计图
图片尺寸1749x2482
通达品牌轻质高强b300不锈钢巴歇尔槽7号巴氏计量槽
图片尺寸800x512
hybsc巴歇尔槽又称巴氏槽排污计量水量计量
图片尺寸747x846
不锈钢巴歇尔槽
图片尺寸1920x1345
巴氏计量槽 外文名pap metering tank
图片尺寸751x608
明渠巴氏计量槽 巴歇尔槽 巴氏流量生产厂家
图片尺寸750x1500
巴氏计量槽安装平面和剖面图尺寸表cad图纸
图片尺寸893x317
8号b450巴氏计量槽不锈钢巴歇尔槽
图片尺寸753x558
明渠巴氏计量槽 巴歇尔槽 巴氏流量生产厂家
图片尺寸750x1344
供应2号巴歇尔槽巴氏计量槽
图片尺寸800x567
jzybs-d900b 巴歇尔槽价格
图片尺寸724x541
玻璃钢巴氏计量槽
图片尺寸676x417
某水厂巴氏计量槽平面图剖面图详图
图片尺寸640x500
明渠流量计 超声波不锈钢304巴歇尔槽河道污水灌溉巴氏计量槽
图片尺寸790x1172