平开窗滑撑安装图纸

推拉819系列
图片尺寸1000x1243
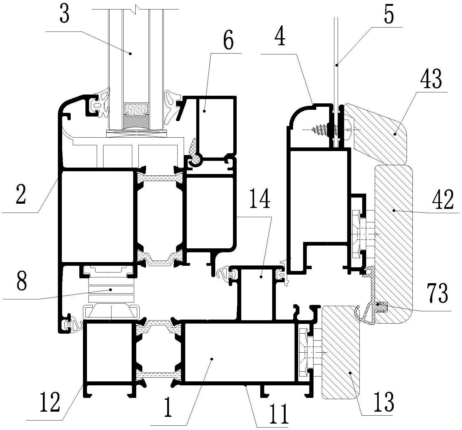
一种一体式滑撑外开铝合金门窗
图片尺寸1509x1406
滑撑及平推窗的制作方法
图片尺寸1000x755
5011系列平开窗
图片尺寸800x1131
一种滑轴平开窗装置的制作方法
图片尺寸657x795
产品中心 产品图纸 节能隔热平(门)窗系列 hh-gr63系列隔热平开窗
图片尺寸1000x1415
5高等系列断桥外平开窗
图片尺寸1200x1697
产品中心 产品图纸 节能隔热平(门)窗系列 hh-gr63系列隔热平开窗
图片尺寸1000x1415
cn202493120u_啮合联动式门窗用滑撑铰链失效
图片尺寸1000x857
窗铰链平开窗上悬窗滑撑304不锈钢窗户四连杆塑钢窗铝合金窗配件12寸
图片尺寸800x974
平开窗结构图5cad施工图设计
图片尺寸610x861
提供时之鑫门窗-铝合木纹加工/断桥铝门窗 门窗厂家
图片尺寸350x496
某经典平开窗cad构造大样
图片尺寸610x861
溢溢隆上悬窗单点伸缩撑窗户风撑限位器平开窗风固定器幕墙撑杆 上悬
图片尺寸750x1316
5槽304二连杆风撑铝合金门窗滑撑外开窗撑杆塑钢窗铰链
图片尺寸750x445
一种气弹簧助力支撑外开下悬窗的制作方法
图片尺寸1000x728
格林钛德(green tide) 304不锈钢风撑二连杆断桥铝合金塑钢平开窗限位
图片尺寸791x1600
2支装迪福德平开窗铰链两档定位铝合金塑钢幕墙滑撑风撑304不锈钢
图片尺寸790x1149
铝合金窗户铰链塑钢平开窗滑撑上下悬窗支架304不锈钢风撑 12英寸18方
图片尺寸790x818
断桥铝门窗合页304不锈钢隐形铰链暗合页平开窗风撑推拉窗户配件 敬平
图片尺寸1500x2322