广联达楼梯的画法

请问这个楼梯用参数化的标准双跑来绘制嘛-答疑解惑-广联达服务新干线
图片尺寸1000x532
在广联达中楼梯该怎么画,我是新手求详细画法,越详细越好,大神帮帮忙
图片尺寸431x698
这个楼梯在广联达中用什么参数化楼梯定义-答疑解惑-广联达服务新干线
图片尺寸828x1792
如何画在广联达土建算量软件里面画楼梯?
图片尺寸2448x3264
在广联达中楼梯该怎么画,我是新手求详细画法,越详细越好,大神帮帮忙
图片尺寸1411x509
求助楼梯的画法
图片尺寸901x519
广联达土建算量2013设置楼梯踏步起始边在哪里找到 怎么没看到呢?
图片尺寸558x500
广联达钢筋楼梯类型选配
图片尺寸964x725
请问专家,怎么区分楼梯类型-答疑解惑-广联达服务新干线
图片尺寸522x842
广联达参数化楼梯两边都有扶手怎么画?
图片尺寸670x779
广联达服务新干线
图片尺寸1192x844
楼梯多出来一跑-答疑解惑-广联达服务新干线
图片尺寸1055x1001
广联达服务新干线
图片尺寸928x578
dt型楼梯 -答疑解惑-广联达服务新干线
图片尺寸771x496
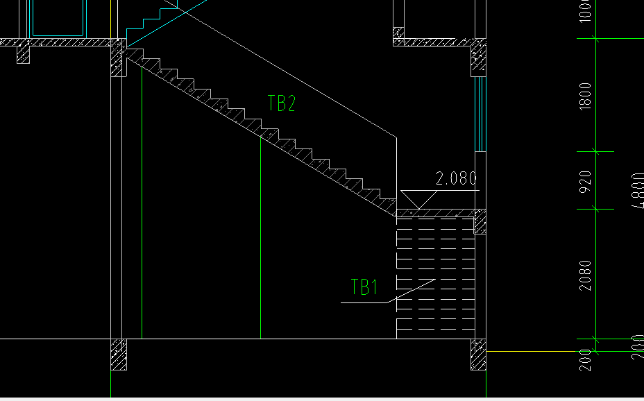
这样的楼梯在广联达如何定义? 用楼梯在用现浇板 分开画吗?
图片尺寸904x567
广联达楼梯钢筋信息不会输入
图片尺寸1000x506
广联达服务新干线
图片尺寸974x658
广联达图形软件楼梯怎么画
图片尺寸551x454
广联达图形算量(gcl)楼梯建模时,出现同一层有4跑楼梯,如何布置?
图片尺寸600x450
广联达gtg2021楼梯怎么布置
图片尺寸412x554