店面平面布局

如何合理化设计零食店的空间布局?
图片尺寸1280x1792
便利店设计平面图:打造高效,便捷的购物体验
图片尺寸536x500
奶茶店设计平面图:打造舒适,高效的饮品销售空间_顾客_未来的_的需求
图片尺寸721x495
平面规划·不同面积的奶茶店平面布局
图片尺寸1916x1280
布局图平面图 #代画 #经营许可证 - 抖音
图片尺寸1438x2034
33平蛋糕店布局平面图
图片尺寸1241x1693
中药奶茶店空间设计 可领取一份《40平中药奶茶店平面布局图》
图片尺寸1440x2400
烧烤店-平面布局设计 设计阶段需要根据客户需求 场地条件 整体预算
图片尺寸960x1280
如何合理化设计服装店的空间布局?
图片尺寸1038x875
商业空间平面图 服装店装修平面图需要滴滴价格优惠
图片尺寸1808x1280
平面规划·不同面积的奶茶店平面布局
图片尺寸2560x1280
如何合理化设计甜品店的空间布局?
图片尺寸1280x905
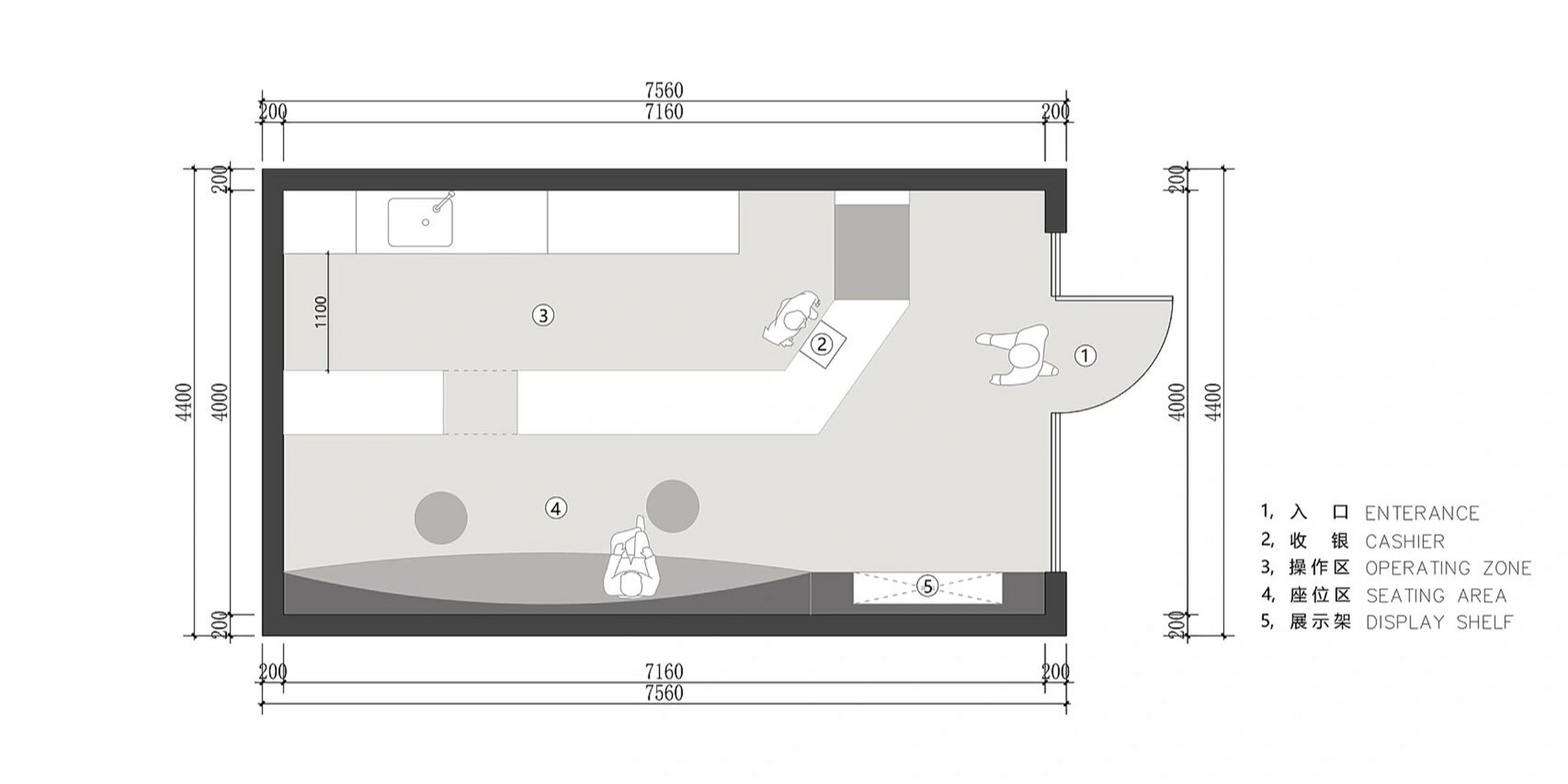
平面规划·不同面积的奶茶店平面布局
图片尺寸2560x1280
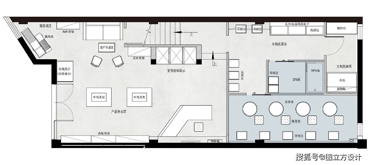
首层平面图△夹层平面图△二层平面图项目信息项目名称:bibu宠物店
图片尺寸7016x4962
如何合理化设计零食店的空间布局?
图片尺寸1280x623
如何合理化设计宠物店的空间布局?
图片尺寸1280x572
便利店如何通过布局和商品陈列,满足不同消费人群和服务需求
图片尺寸1200x930
餐饮-烧烤店平面图代画.#卫生许可证 #烧烤店 #图文热点来 - 抖音
图片尺寸1440x2022
店面布局图最新
图片尺寸920x1302
童装店设计平面图:打造温馨,舒适的购物天堂
图片尺寸660x474