建筑剖面图的正规画法

剖面图
图片尺寸1294x866
别墅剖面图.jpg
图片尺寸760x608
几个步骤教你建筑剖面的正确画法
图片尺寸856x602
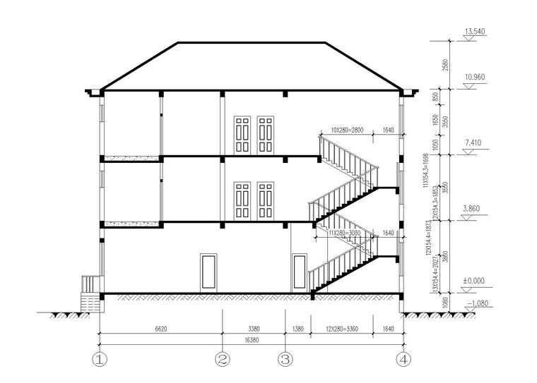
坡屋顶3层独栋别墅建筑施工图 1-1剖面图
图片尺寸760x543
剖面图
图片尺寸560x420
剖面图
图片尺寸936x795
四合院剖面图
图片尺寸1000x848
独栋别墅建筑施工图 3-3剖面图
图片尺寸760x543
剖面图 section-哥俄布朗哥住宅第11张图片
图片尺寸4207x1529
房屋建筑剖面图欣赏设计图片赏析
图片尺寸1215x885
楼梯间剖面
图片尺寸742x540
识图竞赛培训课程绘制建筑详图习题答案1702楼梯剖面绘制2doc3页
图片尺寸792x1120![[分享]技术作图 | 如何无遗漏的绘制建筑剖面?](https://imgs.wantubizhi.com/img/735A5D1F980B52A636CC46F12F2D1A73703E239A7BBA3E90251CC4265B53507ED118534AAF942C19F2C1C0679C785CFBD802F478E83DFAB7DF55F92A9E1C5F5119609167E8D1113229D56FDD66EEA0F5A9C269F501826FE86D95B0012DEB35B8)
[分享]技术作图 | 如何无遗漏的绘制建筑剖面?
图片尺寸760x1126
剖面图内容简介 资料为办公楼建筑和结构图,2层带阁楼.
图片尺寸814x566
第九章第四节建筑剖面图识图举例
图片尺寸920x1302
剖面图
图片尺寸560x437
巴西阿尔加斯住宅剖面图-巴西阿尔加斯住宅第17张图片
图片尺寸2000x1163
两层独栋别墅剖面图
图片尺寸560x420
4个步骤看懂建筑剖面图!_北斗产业资讯平台-千寻位置
图片尺寸640x746
新中式独院式别墅建筑施工图-剖面图
图片尺寸760x543