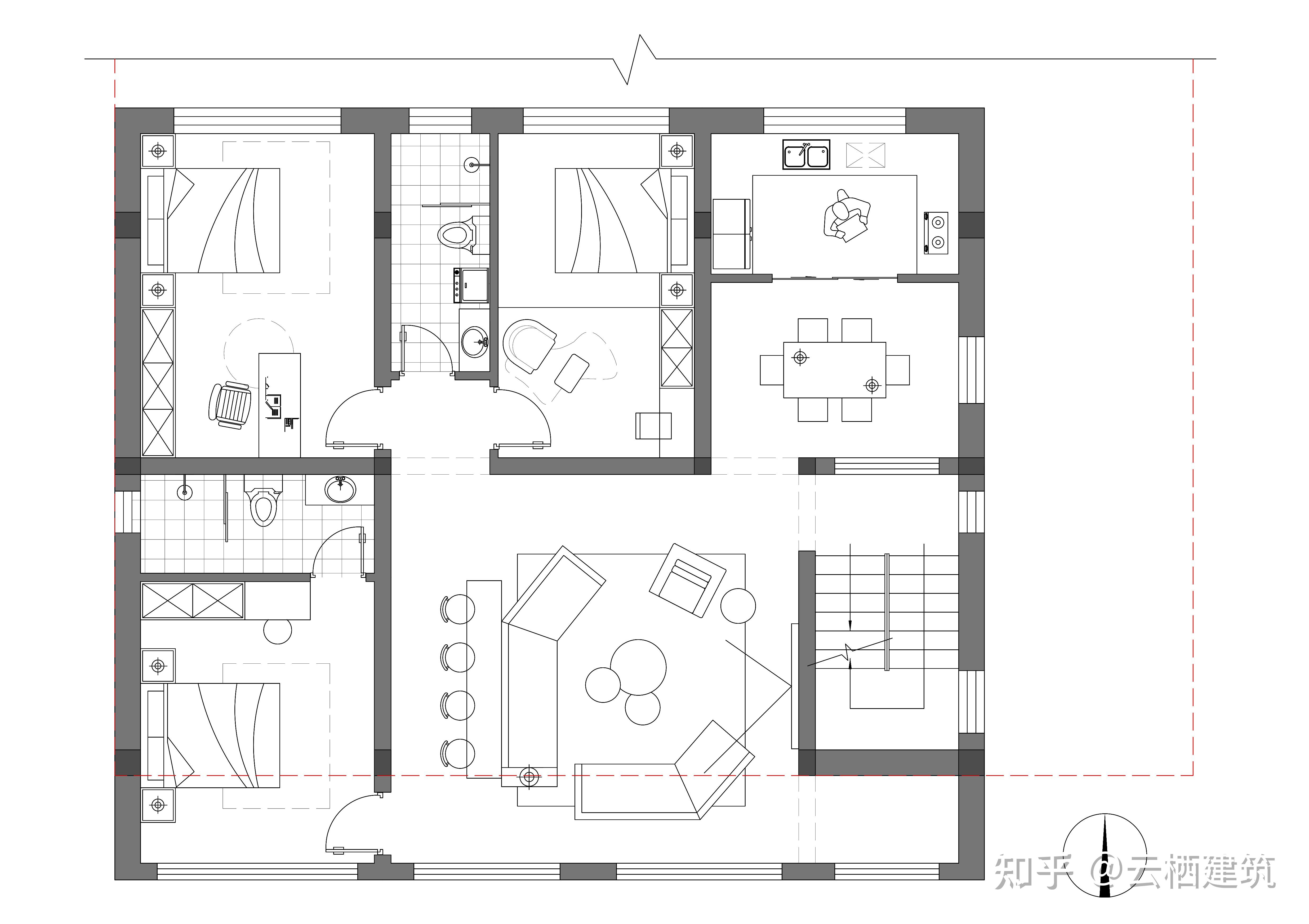
建筑平面图高清

首层平面图.jpg
图片尺寸6932x4961
5m房屋建筑平面图ppt
图片尺寸1080x810
建筑平面图
图片尺寸2809x1856
首层及屋面层平面图.jpg
图片尺寸4933x3488
建筑平面图简称平面图,是建筑施工中比较 - 抖音
图片尺寸1280x1920
唐小英住宅首层平面图.jpg
图片尺寸991x1322
二至四和五层平面图.jpg
图片尺寸6906x4942
首层面积140平方米3层私宅设计建筑施工图 model (1)
图片尺寸2412x1727
天津曼哈顿商业建筑平面图
图片尺寸3000x2161
2建筑平面图
图片尺寸1600x1280
天津曼哈顿商业建筑平面图
图片尺寸3000x1968
90平家居装修效果图资料下载-砖混结构独栋别墅建筑施工图设计(cad
图片尺寸1078x976
建筑工程实习作品 六层住宅小建筑 六张建筑平面图
图片尺寸3000x2121
首层平面图.jpg
图片尺寸4252x3118
建筑平面布置图(pb-4-t-01)
图片尺寸1311x927
分享门面房建筑设计平面图资料下载
图片尺寸823x715
住宅楼建筑平面图
图片尺寸700x392
教学楼建筑图(作业)第一次(一层平面图)答案
图片尺寸2478x1401
有没有1212方正三层自建房平面图
图片尺寸4942x3489
创新佳苑小区6层砖混结构住宅楼建筑设计cad图纸,其中包含:各层平面图
图片尺寸610x861