建筑快题设计案例

建筑快题作品分享
图片尺寸3000x4199
建筑快题分享
图片尺寸900x1286
建筑快题线稿系列(三)
图片尺寸1280x904
【快题灵感】第01期丨建筑设计手绘 快题抄绘灵感素材
图片尺寸4015x2923
【景观建筑快题暑期课稿合集分享一】【景观建筑快题暑期课稿合集
图片尺寸1496x1080
建筑快题作品分享
图片尺寸3000x2231
建筑快题作品分享
图片尺寸3000x4287
建筑复试快题状元作品,体块空间学起来(百德设计)
图片尺寸1280x1832
建筑快题作品分享
图片尺寸3000x4061
建筑快题学员作品
图片尺寸6996x4876
【快题灵感】第01期丨建筑设计手绘 快题抄绘灵感素材
图片尺寸2799x2064
大禹建筑快题方案【企业办公楼】|空间|建筑设计|安安的静静 - 原创
图片尺寸1864x2611
四方手绘建筑快题设计
图片尺寸4680x3324
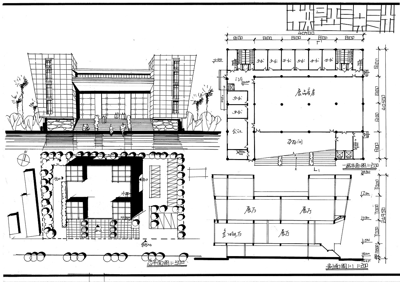
建筑快题 #建筑案例每日抄绘 #建筑学 #快题设计今日出炉的图欢迎
图片尺寸1080x748
分享收藏建筑线稿快题线稿线稿设计建筑快题手绘设计作品信息创作时间
图片尺寸1280x908
四方环艺作品欣赏~ #建筑设计#建筑设计超话#空间美学#环艺考研快题
图片尺寸690x966
大禹建筑快题方案【企业办公楼】|空间|建筑设计|安安的静静 - 原创
图片尺寸2048x2868
建筑快题作品分享
图片尺寸3000x2141
四方环艺作品欣赏~ #建筑设计#建筑设计超话#空间美学#环艺考研快题
图片尺寸690x1000
大禹手绘2020寒假班建筑快题优秀作品欣赏|空间|建筑设计|大禹手绘
图片尺寸3000x2121