建筑模数

制品,构配件等有关尺寸间的统一与协调,建筑模数协调尺寸分为标志尺寸
图片尺寸583x819
活动板房常用模数面积对照表
图片尺寸920x1303
坡顶板房常用模数面积对照表共1页
图片尺寸920x1302
坡顶板房常用模数面积对照表
图片尺寸642x726
活动板房常用模数面积对照表
图片尺寸920x1303
首层建筑三维模数控制(1.2m模数)
图片尺寸1080x380
k数坡顶活动板房常用模数面积对照表
图片尺寸709x936
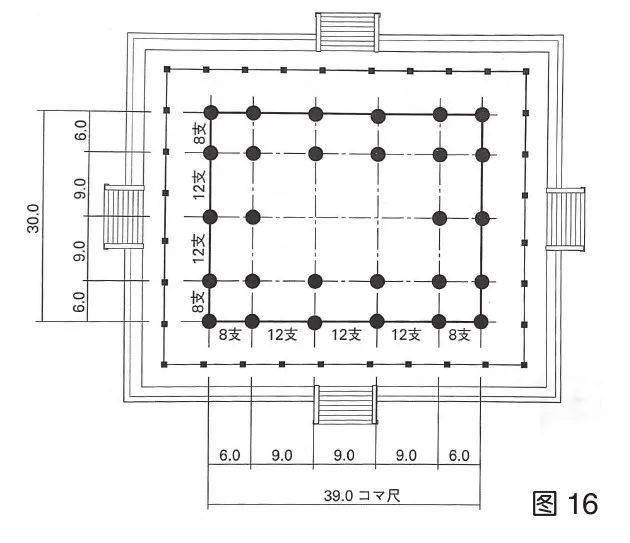
中国古建筑设计模数探讨_尺度_建筑物_研究
图片尺寸630x543
k数坡顶活动板房常用模数面积对照表
图片尺寸920x1303
中国古建筑设计模数探讨_尺度_建筑物_研究
图片尺寸1080x853
建筑标准模数体系
图片尺寸760x543
无忧文档 所有分类 工程科技 建筑/土木 现浇混凝土构件模板工程量
图片尺寸720x1135
文档下载 所有分类 工程科技 建筑/土木 > 活动板房常用模数面积对照
图片尺寸614x780
k数坡顶活动板房常用模数面积对照表
图片尺寸755x777
轻钢组合活动房常用模数面积对照表
图片尺寸684x562
k数坡顶活动板房常用模数面积对照表.doc
图片尺寸792x1120
活动房常用模数面积对照表
图片尺寸800x892
建筑模数
图片尺寸686x504
无忧文档 所有分类 工程科技 建筑/土木 模板系数单位 m3 m3 m 3 模板
图片尺寸803x996
话题建筑设计怎么搞由谁来搞
图片尺寸684x746