承志堂地图

世界遗产 华夏明珠 最美宏村(3):"人间故宫"承志堂
图片尺寸772x1023
徽州名宅建筑:宏村承志堂堪称『民间故宫』
图片尺寸740x641
20200913旅行攻略丨河北保定直隶总督署游记
图片尺寸1920x1442
君子一世,为学,交友而已!
图片尺寸640x894
关于承德县出发自驾游219线路的信息
图片尺寸960x1280
承志堂|祠堂|徽州_新浪新闻
图片尺寸640x612
高树伟再搜通玄记①古刹寻踪
图片尺寸1080x1518
net4info.de/albums/albums/userpics/10003/tai20mu20shan20~0.jpg
图片尺寸1000x978
错峰出行游承德
图片尺寸2000x2828
甄娱传后宫地图 vs 故宫 去故宫一定别忘了去各位小主宫殿瞧瞧,在故宫
图片尺寸1708x1280
地规191192193班人文地理实习day1
图片尺寸453x634
承德外八庙之-普陀宗乘之庙
图片尺寸1337x2074
承德外八庙之须弥福寿之庙
图片尺寸750x1000
代宗朝独孤贵妃身世小考
图片尺寸1080x1270
游千灯古镇
图片尺寸2930x2000
汉藏合璧的皇家寺庙承德普宁寺
图片尺寸700x914
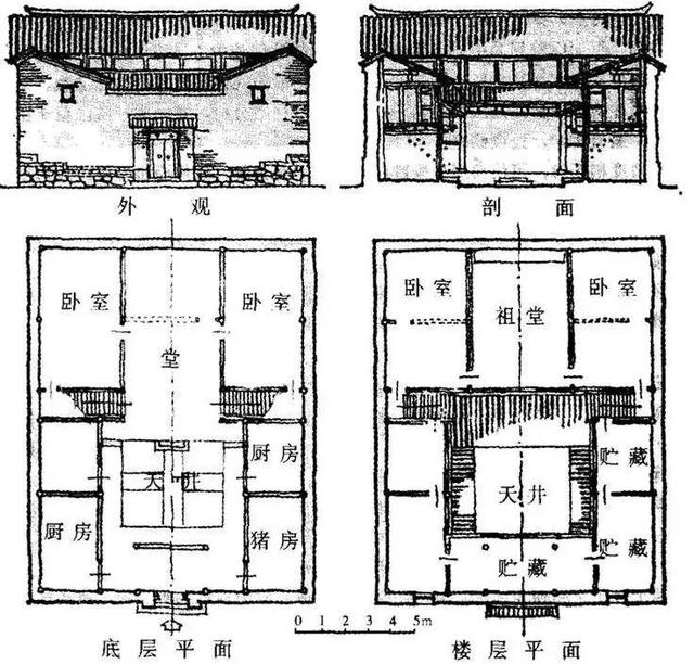
特色:承志堂(清末大盐商汪定贵住宅,被誉为"民间故宫",前厅是整幢
图片尺寸598x585
吴承恩故居游
图片尺寸700x933
不过我们没这个需求,仅观看了一会儿
图片尺寸639x480
纳皇后的不归路:乾隆曾三次极力挽留,终被无情扔出皇陵
图片尺寸640x831