折叠车库制作图纸

一种立体车库
图片尺寸2006x1608
一种立体车库
图片尺寸1924x1128
cn201141216y_立体停车库失效
图片尺寸2091x1667
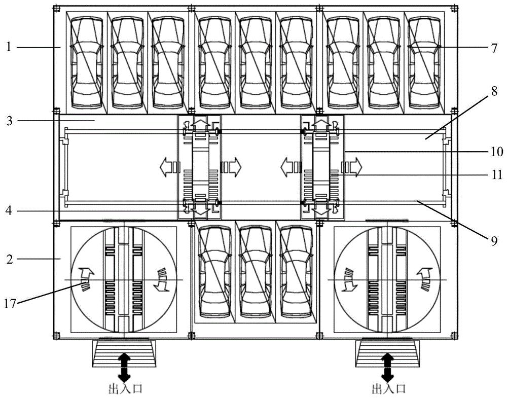
一种垂直循环立体车库的制作方法
图片尺寸777x1000
cn102535901a_可拆卸折叠太阳能自充电便携式防盗车库失效
图片尺寸1883x1336
一种侧方停位立体车库
图片尺寸1694x1308
垂直升降式立体车库设计
图片尺寸2338x1653
一种立体式自行车库的制作方法
图片尺寸710x1000
正一负一机械立体停车库 - 升降横移立体车库哪家好|psh智能停车设备
图片尺寸1659x610
psh升降横移立体车库系统特点介绍
图片尺寸1719x596
两层无避让立体车库的制作方法
图片尺寸1000x938
一种机械式立体车库
图片尺寸1867x1586
垂直循环防摆动立体车库的制作方法
图片尺寸550x845
伸缩折叠升降式轻便型小轿车车库
图片尺寸2428x1748
一种立体车库
图片尺寸1000x537
cn110566021a_一种新型垂直升降立体车库在审
图片尺寸1000x785
小区停车位改造立体停车库的制作方法
图片尺寸656x1000
一种垂直循环防摆动立体车库
图片尺寸550x845
一种组合式立体停车场制造技术
图片尺寸836x1000
一种便于停放摩托车的微型车库的制作方法
图片尺寸1000x944