护墙板工艺

护墙板工艺显示
图片尺寸750x818
工艺细节二护墙板拼接方式内嵌金属插条
图片尺寸1080x1439
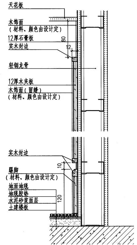
木作常见的护墙板收口工艺
图片尺寸720x960
定制护墙板知识与安装工艺
图片尺寸1080x764
设计干货|护墙板 隐形门的做法工艺大揭秘.
图片尺寸1080x1920
姐妹们护墙板电视墙没压金属条还可以吗
图片尺寸1080x1439
贴面包柱子折弯竹木装饰墙板pvc发泡木塑板 竹木纤维护墙板装饰板
图片尺寸800x553
深圳全屋定制护墙板工艺细节
图片尺寸1080x1439
木饰面实心护墙板竹木纤维无缝板新款全屋装修免漆碳晶板全屋整装
图片尺寸800x800
竹木纤维集成护墙板阳台pvc吊顶背景墙面装饰板生态木大长城板
图片尺寸790x972
定制家网护墙板木饰面的施工工艺与安装方法详解
图片尺寸482x859
定制家网 || 护墙板木饰面的施工工艺与安装方法详解
图片尺寸448x815
现代简约竹木纤维护墙板客厅电视背景墙板定制立体影视集成墙扣板
图片尺寸1200x1200
供应全屋整装竹木纤维墙面装饰板 300mm木塑集成墙板 浮雕护墙板
图片尺寸750x524
现代简约竹木纤维护墙板客厅电视背景墙板定制立体影视集成墙扣板
图片尺寸800x800
家装选修课堂:装饰板墙面施工工艺 如何选择护墙装饰板
图片尺寸500x478
姐妹们护墙板电视墙没压金属条还可以吗
图片尺寸1080x1439
9厘护墙板应用说明
图片尺寸750x450
理石漆 一体板 聚氨酯保温装饰一体板 仿石材岩棉装饰一体板中安科贸
图片尺寸1024x644
装饰板 披叠板 背景墙板 别墅外墙挂板 水泥板-「护墙板」-马可波罗网
图片尺寸680x1499