报刊亭平面图

报刊亭ah-mc027
图片尺寸866x600
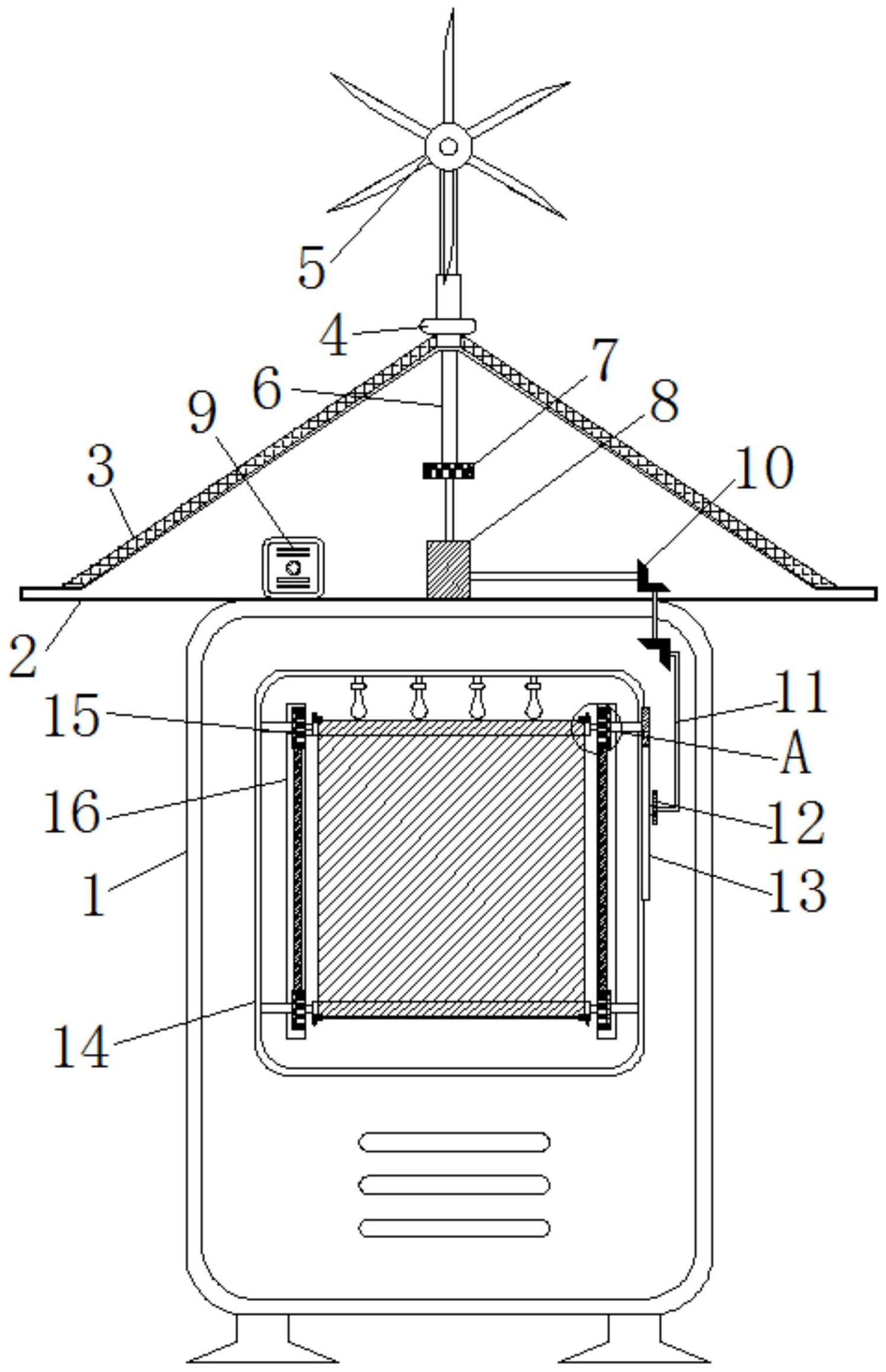
cn112343373a_一种利用风能和太阳能的科技推广报刊亭
图片尺寸1498x2319
图片浏览
图片尺寸1082x702
报刊亭设计详图
图片尺寸368x295
报刊亭
图片尺寸497x347
文化建设与环境艺术系统服务商
图片尺寸800x562
报刊亭平面布置图
图片尺寸610x432
一种多功能移动报刊亭的制作方法
图片尺寸1000x747
特色书报亭详图
图片尺寸560x442
一种多功能报刊亭的制作方法
图片尺寸1000x672
二层
图片尺寸900x636
某地区报刊亭结构整套施工图纸
图片尺寸610x432
一种便于固定摆放的报刊亭-爱企查
图片尺寸462x325
上海某公园报刊亭设计施工详图
图片尺寸610x432
x一种新型多功能的报刊亭-爱企查
图片尺寸430x311
报刊亭设计图纸
图片尺寸330x341
一层
图片尺寸900x636
报刊亭(方顶)-爱企查
图片尺寸1152x801
报刊亭大样图
图片尺寸551x344
报刊亭
图片尺寸548x293