报告厅立面图

报告厅设计方案一
图片尺寸1200x1598
500平国药报告厅一层部分施工图节选.内设演讲区和交流区,演
图片尺寸1242x1660
4000平米报告厅施工图详解📖
图片尺寸1074x602
建筑学考研快题大空间详图
图片尺寸1920x2156
🎤 报告厅设计新方案来啦!
图片尺寸1080x1427
报告厅平面.个人承接家装,工装装饰施工图深化节点大样图深化
图片尺寸9950x7212
500人报告厅室内装饰cad施工图cad图纸
图片尺寸1549x1080
760平现代报告厅施工图cad图纸
图片尺寸1529x1080
报告厅施工图cad图纸
图片尺寸1350x1080
报告厅建筑施工图cad图纸
图片尺寸1529x1080
报告厅声学设计装修施工图cad图纸
图片尺寸1106x959
这么详细的报告厅(多功能厅)施工图纸素材,赶紧收藏起来!
图片尺寸3840x2160
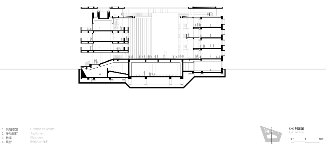
3号楼文体中心平面图▲3号楼文体中心剖面图▲3号楼文体中心南立面
图片尺寸1080x740
中国药科大学报告厅建筑设计手绘全攻略
图片尺寸1602x1890
句容ib学校学术报告厅正立面
图片尺寸500x279
如何做一个学校:迹·建筑事务所的海口江东寰岛实验
图片尺寸1080x487
某学校多功能报告厅设计施工图cad图纸
图片尺寸1415x1003
报告厅平面施工图cad图纸
图片尺寸1528x1080
报告厅及会议室音视频系统施工图纸素材,平面图,系统图及图例
图片尺寸3840x2160
电影院报告厅视线分析图
图片尺寸610x432