掩体构筑经始图画法

步兵掩体和炮兵掩体有什么不同?应怎样构筑?
图片尺寸1152x716
步兵掩体和炮兵掩体有什么不同应怎样构筑
图片尺寸1139x982
单兵挖掩体的示意图
图片尺寸327x631
横竖交错中的学问,如何挖出实用的战壕工事
图片尺寸443x542
中国步兵的钻地火箭弹60秒炸出2米深掩体可隐藏4名士兵
图片尺寸960x814
虽然尸体可以一定程度上可以构筑掩体抵御子弹和破片,但最好
图片尺寸441x352
步兵掩体和炮兵掩体有什么不同应怎样构筑
图片尺寸449x380
紧接着,卧姿掩体改跪姿掩体,这也容易,不断挖深就行,起码要一铲或一铲
图片尺寸639x613
根据所使用的武器不同,可构筑成单人掩体,机枪工事等等;根据武器的射
图片尺寸640x846
战马掩体纵横交错的战壕单兵掩体主战场日军主堡所在地,居高临下,视野
图片尺寸788x1051
火炮工事经始图·一:炮阵地的选择:首先派出炮阵地侦察组,炮阵地侦察
图片尺寸800x592
undefined
图片尺寸658x582
近迫作业和单人步兵掩体的构筑---少见
图片尺寸2592x1944
坦克掩体
图片尺寸512x394
掘壕据守,详解二战德军挖坑神技之机枪阵地
图片尺寸640x421
金山阵地掩蔽部示意图
图片尺寸252x116![[分享]盾构始发技术及典型质量问题](https://imgs.wantubizhi.com/img/735A5D1F980B52A636CC46F12F2D1A735C0311445F091CBCD76A7F77E850EE50D7422B0C80F868CA5CF60B31A97187560804200C56B1A2280C7C7B81BD4B167F2CF0C155C9E81299BCCC6B7F30E75883970A7A52DC771AE0758B383E980277C9)
[分享]盾构始发技术及典型质量问题
图片尺寸564x337
矛与盾相争谁胜谁败豪华坚固的马奇诺防线告诉你
图片尺寸710x474
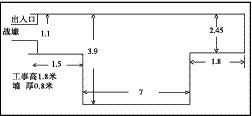
用工兵铲怎么挖单兵卧姿掩体来一个平面图最好带尺寸
图片尺寸1536x2048
11 抗倭名将戚继光及其练兵论著《纪效新书》和《练兵实纪》
图片尺寸1133x1033