暖气片大循环示意图

自然循环供暖能用市面上卖的铜铝复合暖气片吗?
图片尺寸826x744
暖气片的工作原理流程示意图
图片尺寸640x449
具体表现为先供水的暖气片后回水,从而使所有暖气片内的水循环速度
图片尺寸640x427![[讲义总结]暖通讲义-采暖](https://imgs.wantubizhi.com/img/ADDA3C5D760C6828B77B505A29D43E83EF42373B2545054C8EE07F62A737D1A90A1B7DE7DD23D85B246165193E7107CB7728DAAA62F84F1C10FF8D35560B7AC9B11AE4894C4A3775E9E900253504C9519B256D59D110FFD417BC4B9A22974150)
[讲义总结]暖通讲义-采暖
图片尺寸731x525
我家暖气不热,循环不好,谁能给我看看
图片尺寸1239x603
供暖循环系统常见难题及解决办法
图片尺寸940x726
暖气系统的循环水路示意图
图片尺寸640x430
地暖里面的水是在循环的.没有进水哪来的回水啊.
图片尺寸640x354
解惑暖气片的水循环原理是怎样的?
图片尺寸751x414
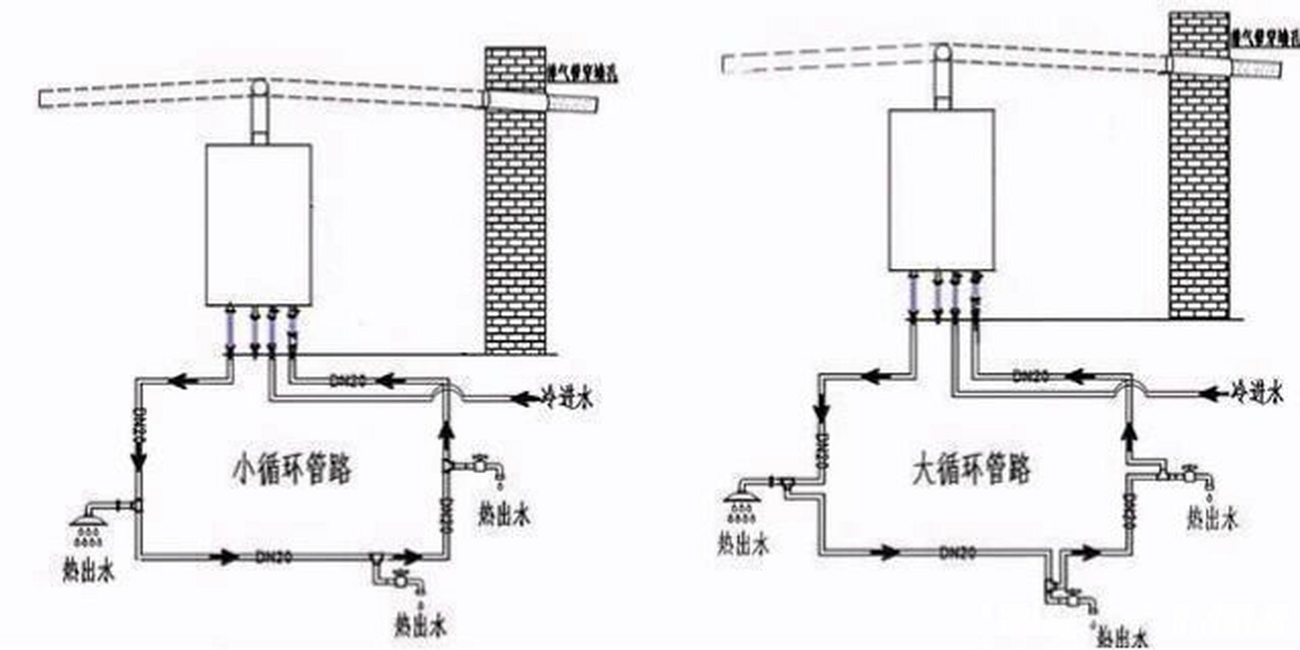
热水大循环(建议)和小循环的差异(回水) 1,管路结构不同 大循环是将
图片尺寸2560x1280
从暖气片较高的一端流入,从位置较低的一端流出,不但有利于水循环的
图片尺寸650x396
目前家庭供暖方式主要有集中供暖和独立采暖两大类.
图片尺寸640x361
供暖系统有哪些分类
图片尺寸500x284
离分集水器远的暖气片水循环得就会慢一些
图片尺寸484x331
武汉用哪种暖气片好,武汉用什么样的暖气片好,武汉暖气片用什么好
图片尺寸600x286
明装暖气片
图片尺寸1000x359
水暖暖气片安装示意图
图片尺寸598x310
增压泵家用160暖气泵地暖循环泵家用静音暖气循环水泵家用超静音220v
图片尺寸790x1233
暖气片水循环示意图如下
图片尺寸527x334
增压泵全自动暖气锅炉循环屏蔽热水泵 数显温控器 盛泰100瓦泵【图片
图片尺寸790x1737