构造柱怎么画剖面图

构造柱,如图所示
图片尺寸970x795
请问一下,该独基上的柱子截面尺寸为700,独基上外圈柱子为什么是800
图片尺寸866x971
变截面柱咋画?
图片尺寸1408x886
五层自建房框架结构柱子截面尺寸用多大?
图片尺寸2532x1170
当德尔特变化小图片尺寸1080x2340

柱子剖面图
图片尺寸523x833
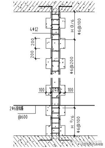
构造柱与墙体连接剖面图
图片尺寸354x498
像这样的构造柱及剖面图怎么画
图片尺寸312x377
框架柱扩大截面加强怎么绘制
图片尺寸3024x4032
建出来的柱截面图跟图纸给的不一样
图片尺寸639x745
2构造柱轻质砖墙砌筑做法图
图片尺寸3000x2000
美岩板立柱收口节点分享
图片尺寸1477x1050
高层结构构造柱节点构造详图
图片尺寸610x442
抗震详图之混凝土构造柱及圈梁详图cad图纸
图片尺寸1209x878
请问一下这个柱子的 的剖面图是什么意思 只预留插筋吗?
图片尺寸568x624
柱子剖面图
图片尺寸747x889
土建算量中变截面构造柱怎样画?
图片尺寸786x381
图片尺寸1440x1080
构造柱
图片尺寸1489x769
确认这是构造柱的大样示意图吗?
图片尺寸1164x747