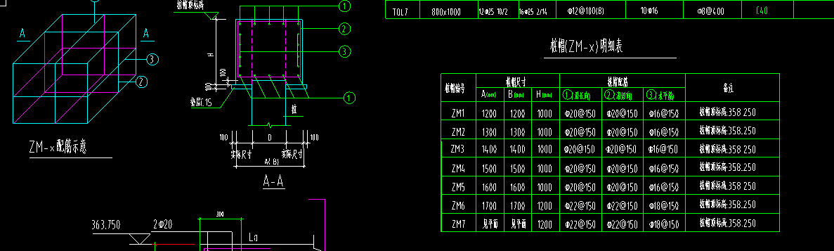
桩帽大样

静压桩桩帽做法说明
图片尺寸583x378
一种简易可循环使用的静载荷试验桩钢桩帽的制作方法
图片尺寸1000x758
静载试验桩帽要求
图片尺寸838x1173
静载试验桩桩帽设计示意图
图片尺寸800x1132
图中这个桩帽对应的是哪个配筋形式
图片尺寸663x465
cfg桩桩帽的处理
图片尺寸920x1302
桩帽施工
图片尺寸1152x714
一种无承台桩帽结构
图片尺寸1224x1797
请问这个桩帽用什么来定义呢
图片尺寸902x553
静载试验桩桩帽设计示意图
图片尺寸920x1301
基础桩帽问题
图片尺寸607x549
请问我这个图纸上桩的桩帽怎么看尺寸形状那些
图片尺寸1128x722
柱帽
图片尺寸593x628
cn211849412u_一种基于预应力混凝土管桩用桩帽
图片尺寸1643x1613
用于预应力管桩的装配式桩帽
图片尺寸1689x1613
这个桩帽在哪里定义
图片尺寸1187x357
钢管桩桩帽模板计算(修改)10.20.doc
图片尺寸792x1120
变截面的桩帽要怎么定义
图片尺寸751x560
请问桩帽指的是桩的哪部分桩帽和桩承台有什么区别以及什么用途
图片尺寸638x684
一种预应力混凝土管桩桩帽的制作方法
图片尺寸1000x993