植草砖cad

分享植草砖cad图资料下载
图片尺寸560x525
分享植草砖地面详图资料下载
图片尺寸560x254
分享植草砖大样cad资料下载
图片尺寸560x420
分享植草砖地面详图资料下载
图片尺寸560x300
类别:停车场九孔植草砖造价:232元/m2项目:常熟(尚湖)↑类别:沙坑
图片尺寸469x586
分享中式地花cad大样图纸
图片尺寸700x510![[分享]植草砖大样图资料免费下载](https://imgs.wantubizhi.com/img/A1A61BAA66193547F3A6DD7D8EE527E9CF88EC4A1798B3960F05BFC432F638DF5A62A15C363A609800A82F93F455C99DB5C67544BF6BEA2C3051C4F558CB10D219F1331491C34CE44AD229818B84F81D35D7D38E127B8A34B71013BC8FD4914D)
[分享]植草砖大样图资料免费下载
图片尺寸560x451
一生态停车位施工大样图 图纸包括: 平面图,剖面图,植草砖大样图
图片尺寸560x449
中建二局为鹰潭海绵城市建设添砖加瓦
图片尺寸1474x735
三维土工网垫植草护坡设计图
图片尺寸560x420
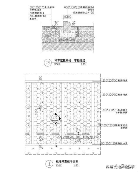
内容简介 图纸包括: 植草砖大样图,停车位构造做法,停车位平面图.
图片尺寸760x372
植草砖尺寸规格怎么选
图片尺寸500x375
植草砖 via https://www.godelmann.de/de/lunix
图片尺寸650x434
八字型井字草坪砖广场井字嵌草砖广州户外停车位草坪砖植草透水砖 400
图片尺寸1006x755
综合楼精装修工程量清单计价实例,不含编制说明,包括植糠窒罟こ
图片尺寸560x444
爵士明珠八字植草砖塑料模具彩砖水泥停车场公园植草地坪混凝土地砖砼
图片尺寸755x746
混凝土模具 河道护坡空心砖水库堤坝生态植草砖砌块塑模 尺寸10【图片
图片尺寸990x1320
铺设植草砖的停车场
图片尺寸1023x706![[分享]cad图植草砖资料下载](https://imgs.wantubizhi.com/img/ADDA3C5D760C6828B77B505A29D43E83969901D5FB9606E34FF43F213125417F74A984F451C42C0A8CA1B6030732EBDEDB131BE49AE0ACC7A3571D1442856774713551568FE084CB63AB9CCCBA98148D6FF8292AFEC3DCC9CAD0C50816862BCE)
[分享]cad图植草砖资料下载
图片尺寸700x350
环保建材之星深入了解植草砖的特点与优势
图片尺寸864x648