污水厂设计

某污水厂设计图
图片尺寸1440x1020
污水处理厂设计 第四节污水厂的高程设计
图片尺寸960x720
污水厂课程设计
图片尺寸1440x1020
淮安区施河镇第二污水处理厂规划设计方案批前公示
图片尺寸800x511
污水处理厂设计 鸟瞰效果图.#污水处理厂设计 #污水厂鸟瞰图 - 抖音
图片尺寸2029x1296
南京市桥北污水厂扩建工程设计方案批前公示
图片尺寸3000x2000
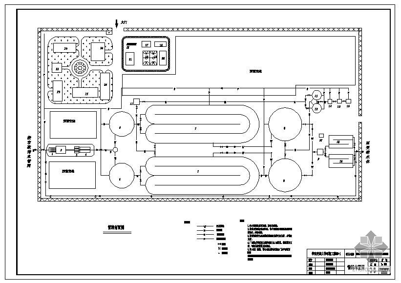
某大学污水厂毕业设计图纸
图片尺寸821x580
城市污水处理厂的设计ppt
图片尺寸1080x810
工厂污水处理样式平面设计图
图片尺寸2338x1653
日处理污水25万吨污水处理厂设计
图片尺寸820x580
a2o工艺污水处理厂全套设计施工图
图片尺寸1156x819
某污水处理厂初步设计图纸
图片尺寸610x432
52000td污水处理厂的初步设计
图片尺寸820x580
分享污水厂平面图设计资料下载
图片尺寸560x395
东莞某食品厂污水处理设计方案
图片尺寸880x636
1万吨城市污水综合处理厂设计方案
图片尺寸811x574
15000m3/d小区污水处理厂设计图纸
图片尺寸610x432
某城市污水处理厂总平面设计
图片尺寸560x403
污水处理厂设计
图片尺寸560x403
污水处理厂的设计ppt
图片尺寸1080x810