汽车转弯半径

汽车最小转弯半径
图片尺寸920x1302
车辆转弯半径表格
图片尺寸920x1191
【讨论】关于车行转弯半径的规范和困惑! - 3 - 土木在线
图片尺寸725x354
汽车最小转弯半径越小越好吗?
图片尺寸726x439
理想mega逆天营销遭全网群嘲,50万以上销量第一稳了?_搜狐汽车_搜狐网
图片尺寸1146x815
汽车最小转弯半径
图片尺寸920x1302
车辆转弯半径表及计算方法
图片尺寸920x1301
车辆转弯半径表格
图片尺寸920x1302
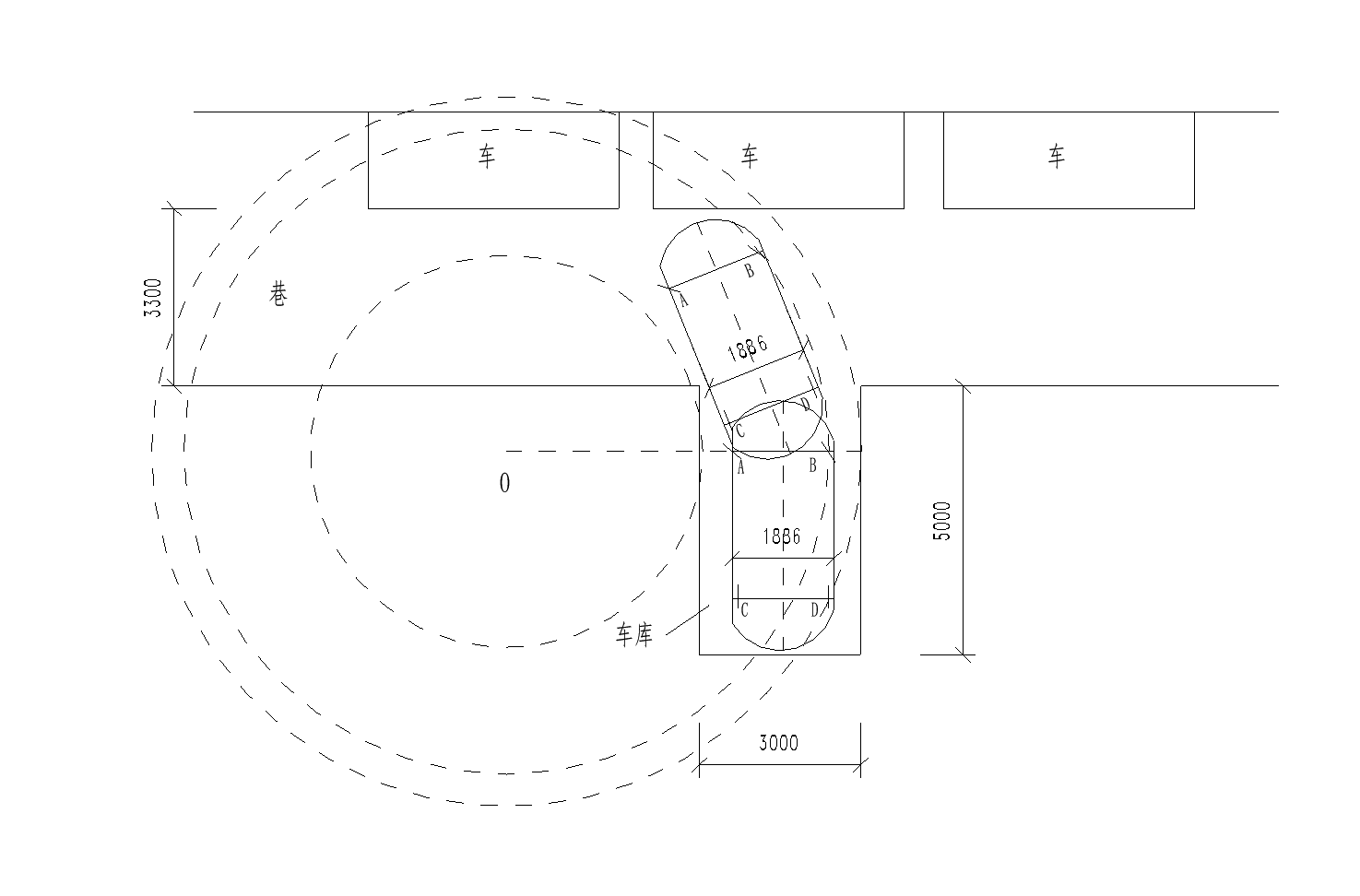
#专项学习笔记# 道路转弯半径 - 知乎
图片尺寸1452x952
尼古拉轴线转弯半径_word文档在线阅读与下载_免费文档
图片尺寸680x631
车辆转弯半径表及计算方法_汽车
图片尺寸514x705
汽车车道转弯半径_word文档在线阅读与下载_无忧文档
图片尺寸729x398
汽车直角转弯时转弯半径怎么算? - 知乎
图片尺寸1475x972
关于机动车道的转弯半径
图片尺寸582x261
#专项学习笔记# 道路转弯半径 - 知乎
图片尺寸634x481
消防车道,消防车| 最小转弯半径!
图片尺寸510x1156
#专项学习笔记# 道路转弯半径 - 知乎
图片尺寸910x387
菱云新全顺进店试驾有礼现车充足_》新全顺相关信息_上海菱云汽车销售
图片尺寸458x277
消防车道,消防车| 最小转弯半径! - 消防资源网-经典全集·分类汇总!(
图片尺寸588x528
车辆转弯最小半径和通道宽度计算
图片尺寸920x1302