汾东商务区规划图

汾东商务区交通控制规划方案 本网独家抢先详示
图片尺寸1800x1791
汾东商务区化章街规划将调整断头路有望复工建设
图片尺寸633x656
太原市汾东新区总体规划—土地利用规划图(2006-2026)
图片尺寸1000x1318
太原将启动汾东商务区建设用地规划重磅调整
图片尺寸1080x750
太原将启动汾东商务区建设用地规划重磅调整
图片尺寸1080x750
汾东商务区出新规划 拟打造太原交通新领域
图片尺寸427x432
汾东商务区一个媲美长风商务区兼具繁华与繁花的cbd
图片尺寸674x463
公示:太原汾东商务区又有新规划 含商业,公园,体育等
图片尺寸4193x2893
太原汾东商务区最新规划方案出炉
图片尺寸640x678
汾东商务区交通控制规划方案 本网独家抢先详示
图片尺寸1800x1250
太原汾东商务区pk三给片区谁将成为太原新的展示形象窗口
图片尺寸800x837
汾东商务区交通控制规划方案 本网独家抢先详示
图片尺寸1800x1667
是宝能集团首入太原的开山之作,位于太原市小店区汾东商务区核心位置
图片尺寸840x560
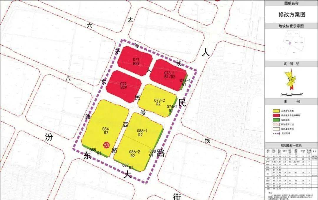
太原汾东商务区最新规划!将新增住宅,商业用地,紧邻人民路
图片尺寸1553x1080
汾东商务区路网规划打造太原交通新领域
图片尺寸580x435
快讯! 当代置业西北区域成功摘得汾东商务区优质地块 落子第十盘
图片尺寸1080x614
太原汾东商务区pk三给片区谁将成为太原新的展示形象窗口
图片尺寸800x783
招商时代主场丨区域价值大爆发,盘点汾东商务区的几大机会点
图片尺寸740x576
太原汾东商务区最新规划!将新增住宅,商业用地,紧邻人民路
图片尺寸1080x679
汾东商务区规划拟多座公园看李家庄城中村改造
图片尺寸633x674