润泽公馆 户型图

润泽公馆,1居到4居,61平到169平,大家感觉哪个户型好,请在评论区留言.
图片尺寸1080x746
a,小区名称:润泽公馆b,户型:复式c,房屋面积:156平d,设计说明:让这些
图片尺寸3345x4786
润泽公馆2室2厅1卫87㎡南848万
图片尺寸2933x2200
润泽公馆2室2厅1卫88.21㎡南780万
图片尺寸2933x2200
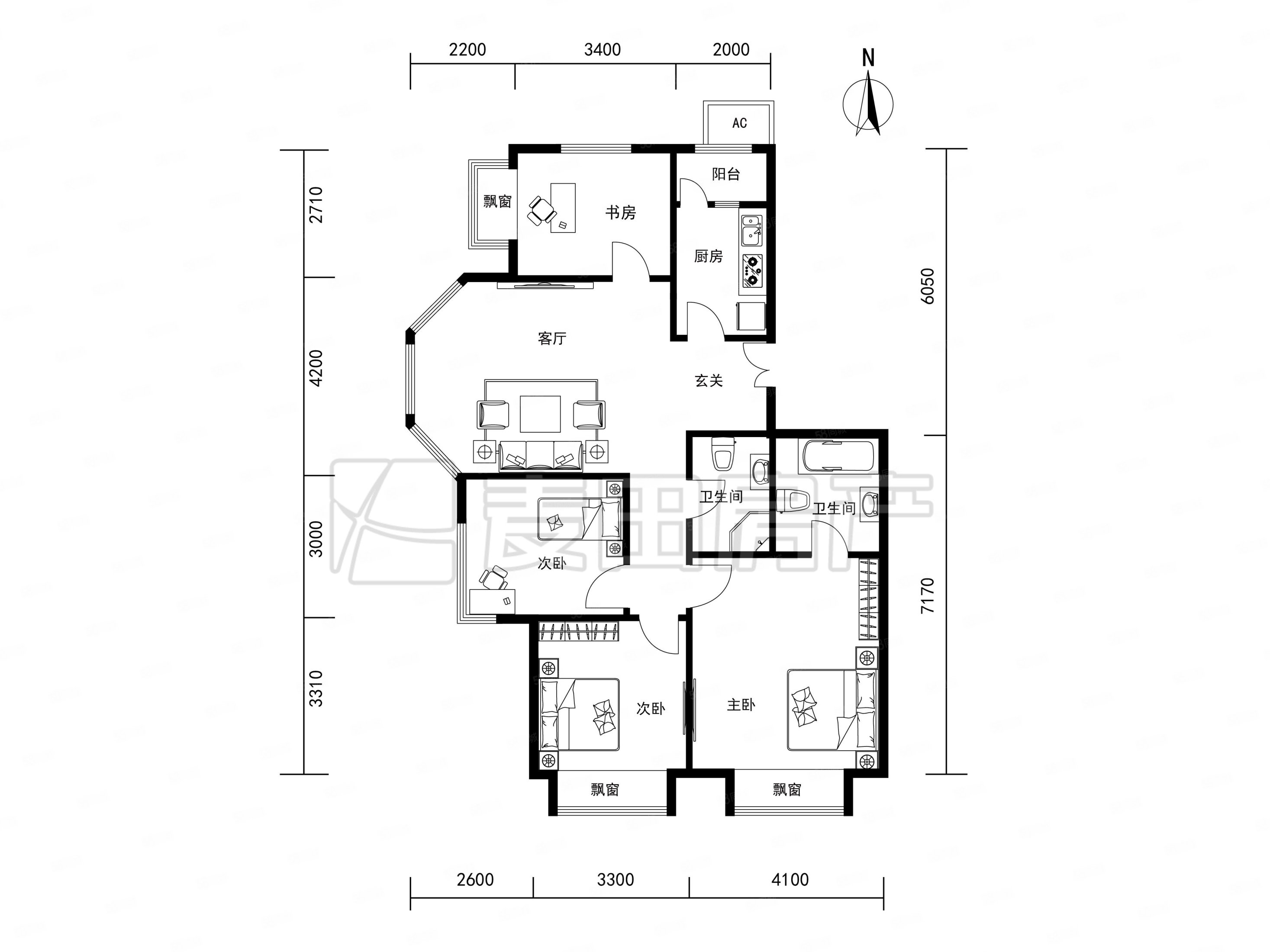
润泽公馆南北西三面采光4居室178平1227万
图片尺寸908x763
南北通透4室2厅润泽公馆精装修
图片尺寸2933x2200
润泽公馆户型图
图片尺寸1066x800
业主信任润泽公馆精装南北三居环境好配套齐全
图片尺寸2933x2200
润泽公馆笔记,北苑,润泽公馆笔记-北京幸福里
图片尺寸1125x844
润泽公馆3室2厅2卫145㎡南北1400万
图片尺寸2933x2200
南北通透4室2厅润泽公馆精装修
图片尺寸2933x2200
此房我跟单6层双卧朝南可做四居室价格可协商润泽公馆
图片尺寸2934x2200
【10图】此房我负责,11层,订房急售,价格空间大,通透户型,润泽公馆
图片尺寸2933x2200
润泽公馆 简约风格 二居室
图片尺寸4706x3371
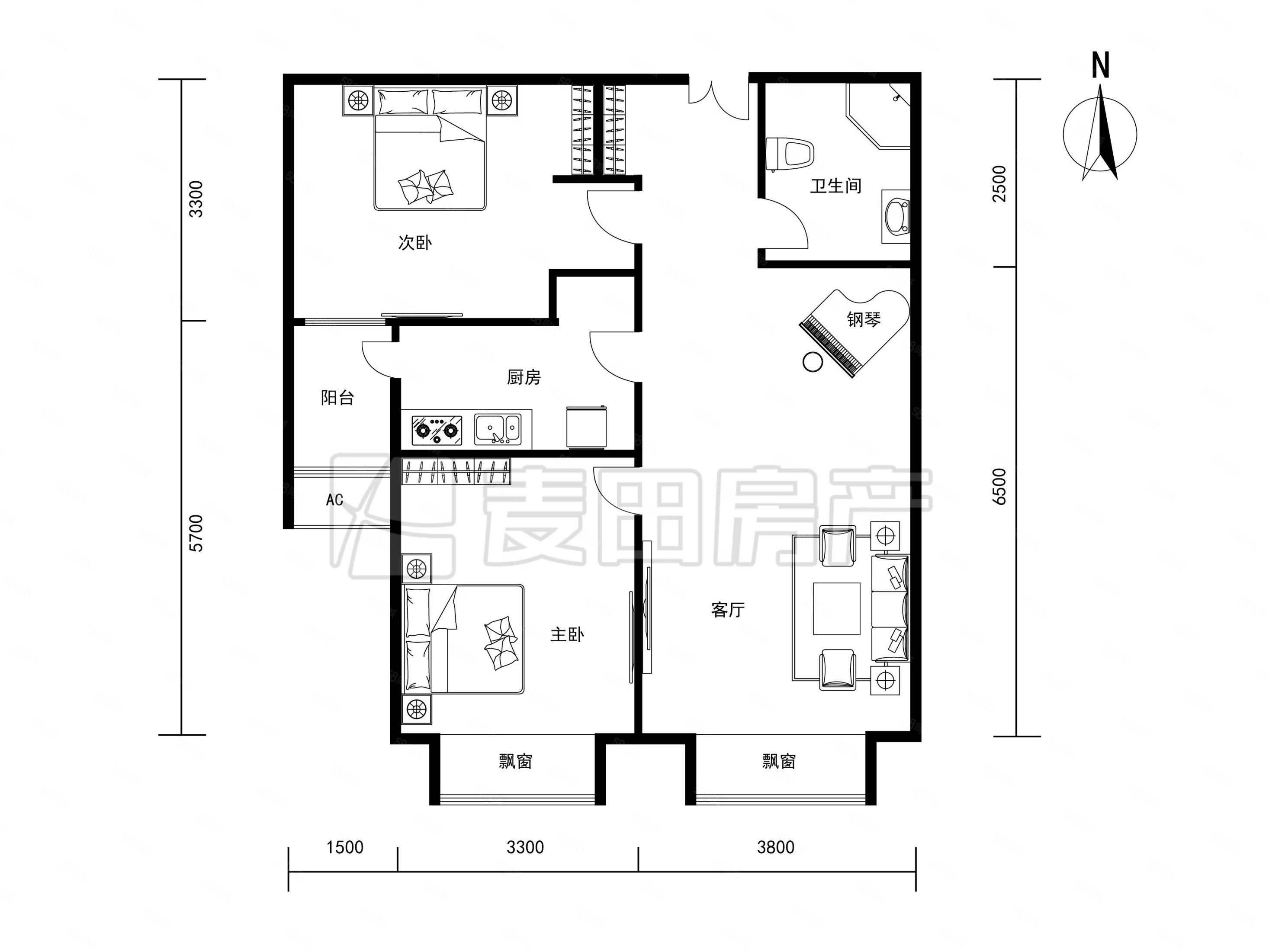
林海之上6层全屋博洛尼客厅双卧室朝南润泽公馆精装修
图片尺寸2858x2144
润泽公馆4室2厅3卫272.05㎡南北2560万
图片尺寸2933x2200
润泽公馆-现在简约
图片尺寸4961x3508
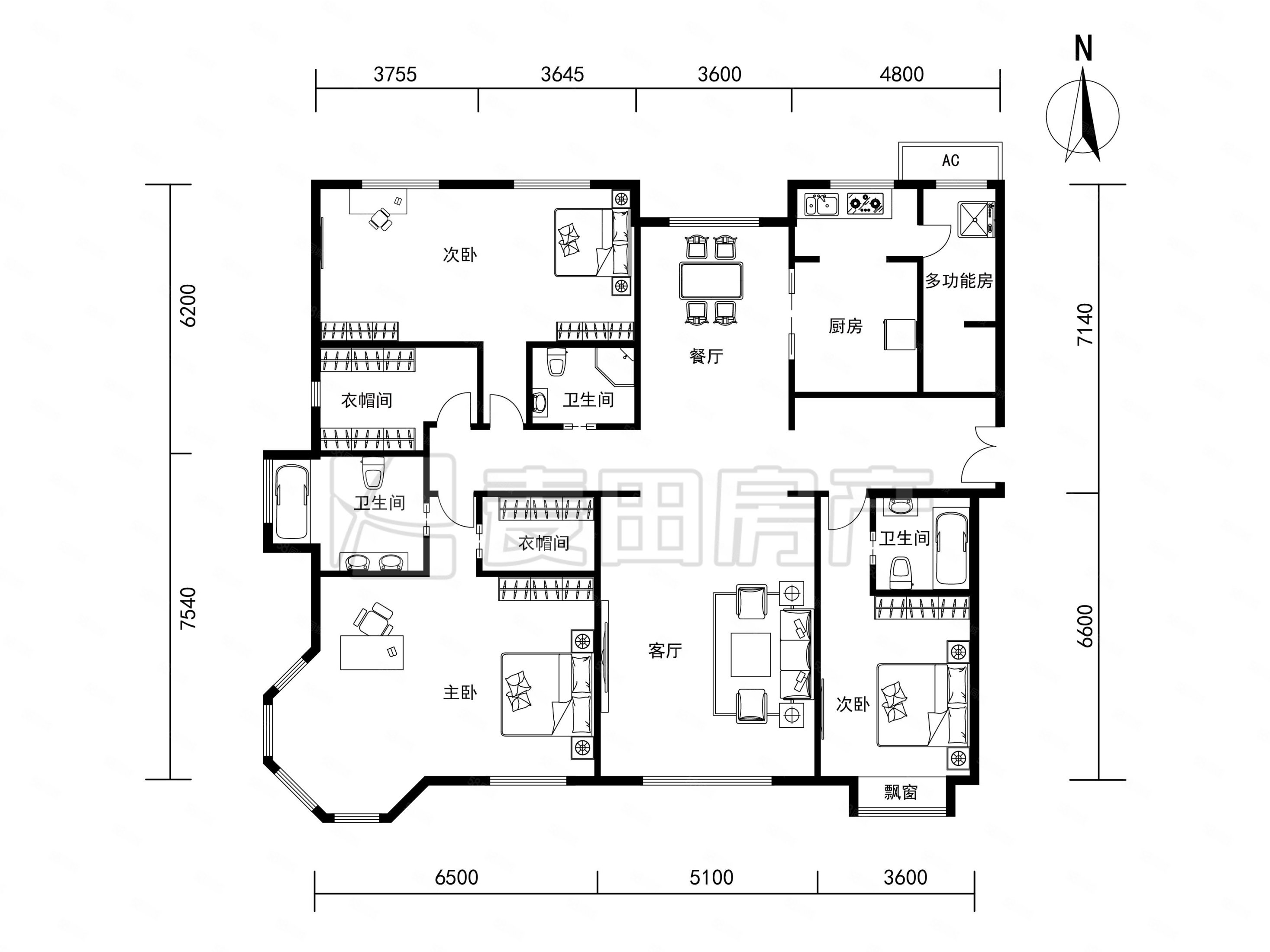
北苑润泽公馆4室2厅,南北通透,三胎家庭得力户型.
图片尺寸1420x1065
三居 户型图图片来自合为国际装饰在润泽公馆的分享
图片尺寸3079x3152
北京买房润泽公馆必看好房中楼前后不临街
图片尺寸1000x750