渡槽结构

u型渡槽设计说明书 一,钢筋混凝土u形渡槽槽身结构设计计算书 (一)
图片尺寸567x318
渡槽由进口段,出口段,槽身和支撑结构等部分组成(见图),进口段与出口
图片尺寸652x502
梁式渡槽
图片尺寸1917x900
一种河套灌区用钢管混凝土渡槽的制作方法
图片尺寸444x304
某引水渡槽设计图
图片尺寸698x500
矩形渡槽横断面型式
图片尺寸942x580
渡槽设计图
图片尺寸820x577
拱式渡槽平剖面典型设计图
图片尺寸915x632
u形渡槽结构设计详cad图纸水利工程dwg图
图片尺寸800x800
上承式桁架拱渡槽
图片尺寸1280x341
渡槽组成:槽身,支承结构,基础及进出口建筑物
图片尺寸1080x810
一种渡槽槽身后浇带施工工艺_cn201910856405.8_知雀网
图片尺寸1000x828
(一)渡槽的构造及作用 按支承结构渡槽可分为梁式渡槽和拱式渡槽两
图片尺寸560x403
一种矩形渡槽槽身大型钢模板与竹胶木模板组合模架的制作方法
图片尺寸1000x625
水工建筑物之渡槽_结构
图片尺寸500x216
分享钢筋混凝土渡槽设计图纸资料下载
图片尺寸760x539
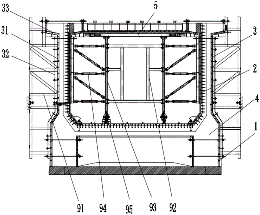
一种渡槽槽身后浇带混凝土模板安装结构
图片尺寸1000x827
某县城渡槽结构施工cad详图
图片尺寸317x233
某处的灌区小型u型渡槽结构设计图纸
图片尺寸610x432
045055米宽渡槽设计图及配筋图
图片尺寸820x590