漏保开关原理图解动画

漏电保护器工作原理图解与注意事项
图片尺寸437x330
家用漏电保护开关原理漏电保护开关接线图
图片尺寸800x507
电工基础,图解漏电保护器(附视频教学)
图片尺寸640x320
漏电保护器及及开关合的安装
图片尺寸573x523
漏电保护器工作原理图_漏电保护器原理图解-漏电保护器和空气开关的
图片尺寸569x502
漏电保护器是怎么工作的实际电路原理图
图片尺寸708x346
性和动作快速性,这是其他保护电器,如熔断器,自动开关等无法比拟的
图片尺寸1000x938
漏电断路器的工作原理及接线图
图片尺寸365x215
网易首页>网易号>正文申请入驻>▌03 家用漏电保护开关的作用像我们家
图片尺寸660x591
4p漏电开关下口接到接触器 接触器的电源线为什么一定要接到漏电开关
图片尺寸720x427
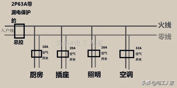
一般在居住环境中潮湿和人容易接触到的地方使用漏电保护器,总开关可
图片尺寸660x527
漏电保护器的工作原理是什么漏电保护器又称漏电开关,触电保安器.
图片尺寸561x607
电气知识漏保开关和空气开关的原理区别这次讲清楚了
图片尺寸548x398
漏保开关
图片尺寸671x726
电路图中空气开关和漏电保护器怎么表示
图片尺寸600x409
家居装修漏电保护开关,空气开关,电线如何选?看电师傅如何计算
图片尺寸613x306
安装漏电保护开关及断路器图解
图片尺寸550x367
漏电保护器电路原理图介绍图中l为电磁铁线圈,漏电时可驱动闸刀开关k1
图片尺寸422x357
漏电保护开关的工作原理介绍,通俗易懂!
图片尺寸1080x632
单相漏电保护器原理图.jpg
图片尺寸720x540