漫湾水电站图纸

漫湾水电站
图片尺寸1263x1468
比较齐全挡土墙,拦水坝标准图集及做法大样图 漫水河水电站可研阶段
图片尺寸708x495
水利泵站图纸
图片尺寸3033x2143
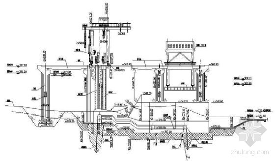
漫水坝施工图纸
图片尺寸505x369
某水电站水利枢纽设计cad图纸
图片尺寸820x581
小型水电站cad设计图-水利工程图纸-筑龙水利工程论坛
图片尺寸864x622
a1-水电站总体布置图
图片尺寸820x580
某水电站枢纽总布置图剖面图-水利工程图纸-筑龙水利工程论坛
图片尺寸560x327
某抽水蓄能电站水利施工图纸(pdf)
图片尺寸350x305
水电站分类与水能现状
图片尺寸859x391
某水电站全套图纸
图片尺寸669x527
某水电站枢纽总布置图剖面图-水利工程图纸-筑龙水利工程论坛
图片尺寸560x385
【四川】某水电站工程全套图纸(水利枢纽)
图片尺寸1440x1020
混凝土重力坝施工导流平面布置图_水电站_土木在线
图片尺寸610x432![[分享]水电站全套图纸资料免费下载](https://imgs.wantubizhi.com/img/ADDA3C5D760C6828B77B505A29D43E834178DAF55E3A86AC584A49232C28AF04D82978E36D8CF73020AE4290F6B003A8D86206B38B9B44FD8B2B418ED8577CB92AB46B582220E828921C9E28DEE4C36380B58EE1F38901061E9723A126634985)
[分享]水电站全套图纸资料免费下载
图片尺寸874x640
某水电站枢纽总布置图剖面图-水利工程图纸-筑龙水利工程论坛
图片尺寸560x266
水电站设计图
图片尺寸484x313
坝后式水电站设计全套图纸
图片尺寸868x641
某大型水电站大坝布置图设计cad图
图片尺寸610x432
某水电站横剖面图
图片尺寸676x476