澄海广益街道规划

澄海这里规划新增多条道路,学校,轨道站点.
图片尺寸700x502
澄海再开挂!新增1041.1亩住宅用地,将配套幼儿园,中小学及医院._规划
图片尺寸1080x691
重磅澄海最新控规修编曝光涉及总用地面积2876公顷
图片尺寸1062x752
汕头市澄海区战略发展镇规划20102030初步方案公示意见征集
图片尺寸2700x4500
重磅| 澄海又有超3000亩地被规划!这次涉及的是这些片区
图片尺寸925x666
关注澄海广益中学已动工有望明年秋季办学吗
图片尺寸660x467
预投300亿元澄海这个片区备受瞩目快看看在哪
图片尺寸1080x810
最新澄海这里规划新增多条道路学校轨道站点
图片尺寸700x502
重磅澄海这个片区规划曝光未来将打造成
图片尺寸700x649
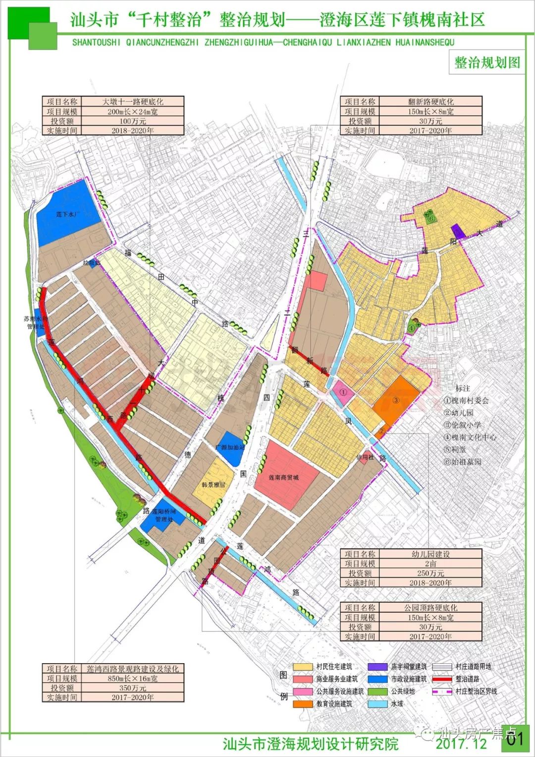
重磅澄海这个镇即将迎来大发展最全详细规划来了
图片尺寸1080x1512
浪险澄海再规划两个功能片区以后不得了了你会住在附近吗
图片尺寸1080x1308
最新澄海这里规划新增多条道路学校轨道站点
图片尺寸700x499
汕头市澄海区综合交通运输体系中长期发展规划(2016-2035年)公示
图片尺寸2960x4186
最新澄海1168亩用地规划曝光涉及这4个片区有你们那
图片尺寸1080x1527
重磅澄海这个片区规划曝光未来将打造成
图片尺寸457x345
二,功能定位:用地涉及广益街道及上华镇,规划范围北抵莲阳河堤,南至华
图片尺寸959x679
汕头市澄海区战略发展镇规划20102030初步方案公示意见征集
图片尺寸424x600
澄海这里控规有变!快看是你们那里吗?_用地_规划_片区
图片尺寸813x549
重磅澄海这个镇即将迎来大发展最全详细规划来了
图片尺寸1080x1526
大动作!澄海这片区新增320亩宅地 规划一所中小学
图片尺寸489x608