猫咖平面设计图

上海装修,上海装修公司,上海装修网,上海装修设计,个性化施工包-齐家
图片尺寸1600x1280
猫咖馆|平面|海报|z73964939 - 原创作品 - 站酷 (zcool)
图片尺寸1280x2560
就是这样的喵咖啡厅一层平面图
图片尺寸1700x1293
猫舍施工图资料下载-猫舍咖啡店室内设计工程全套施工图(jpg)
图片尺寸5616x3468
正在装修中,敬请期待.#猫 - 抖音
图片尺寸1080x1464
宠物港猫咖店~喵星馆|空间|展陈设计|neat丷 - 原创作品 - 站酷
图片尺寸2560x1440
这里是餐饮老板找方向的地方这里也是设计师找灵感的平台平台投稿请
图片尺寸1080x1378
【上海研趣品牌设计】94㎡ | 猫图咖啡金茂店 | 效果图 平
图片尺寸1000x1414
一至三层平面图
图片尺寸640x642
猫咖室内空间设计|空间|家装设计|rene520 - 原创作品 - 站酷 (zcool)
图片尺寸1280x4267
摩根定制猫舍家用猫咖猫窝宠物店猫笼子展示柜狗笼子
图片尺寸700x700
袋中爱猫咖开业啦
图片尺寸1080x1073
的地方,留出了可供家人聊天办公的地方,根据客户的生活习惯出发去设计
图片尺寸1882x1326
思所原创丨汤姆商店猫咖设计
图片尺寸1080x1350
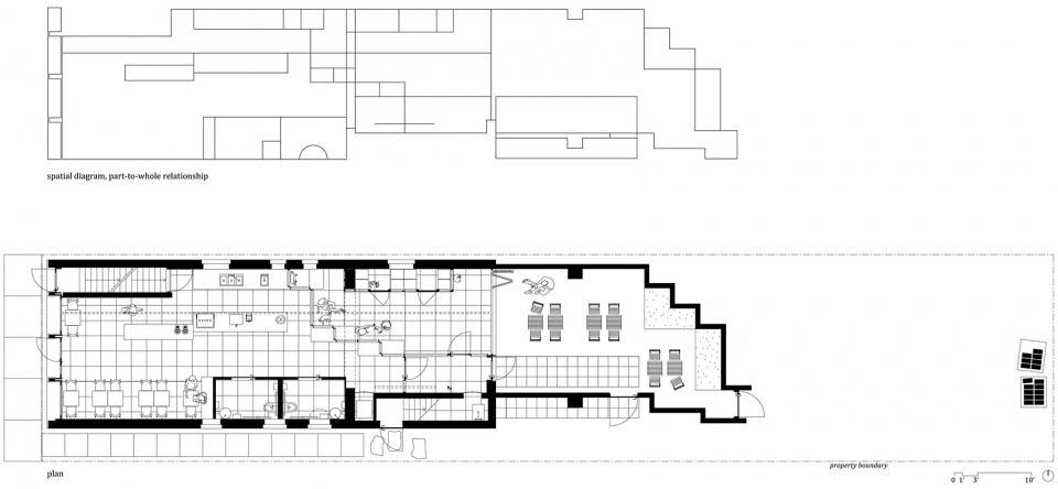
猫咪咖啡馆,美国 / davidson rafailidis - 谷德设计网
图片尺寸960x444
一套猫咖主题的商业空间设计
图片尺寸1080x1439
猫吧设计猫咖装修设计宠物店装修设计咖啡店
图片尺寸1080x1439
猫咖设想|空间|家装设计|林文楚 - 原创作品 - 站酷 (zcool)
图片尺寸1280x620
道吉宠物咖啡馆 dougie pet cafe_3528696 – 设计本装修效果图
图片尺寸1100x826
猫舍现代简约
图片尺寸2000x1108