玻璃砖怎么施工

玻璃砖的3种施工工艺
图片尺寸1080x929
玻璃砖详细施工攻略来啦!
图片尺寸933x1660
普及一下玻璃砖和维修的知识
图片尺寸400x711
玻璃砖隔断施工做法玻璃砖隔断怎么设计
图片尺寸640x844
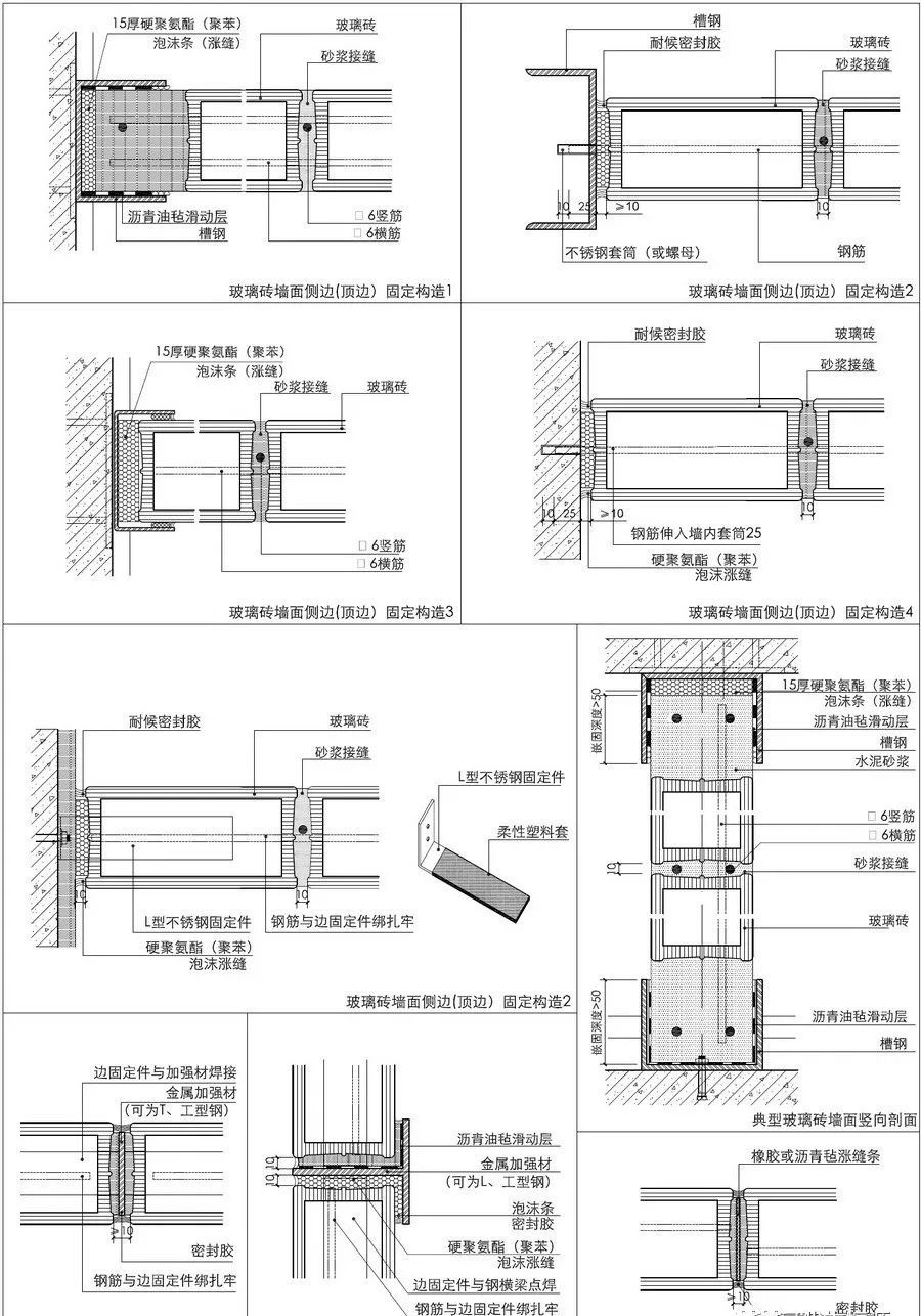
玻璃砖幕墙工程总承包
图片尺寸1080x1440
成都装修队 #装修案例 #成都 #玻璃砖 #贴砖 #装修日记 #施
图片尺寸1080x1441
玻璃砖的3种施工工艺
图片尺寸1080x810
装修玻璃砖隔断一半
图片尺寸1080x1440
网购玻璃砖绝了附施工步骤
图片尺寸1080x1439
玻璃砖的3种施工工艺
图片尺寸971x1299
玻璃砖施工
图片尺寸1080x1439
浴室里砌上玻璃砖,这效果杠杠的
图片尺寸870x492
空心玻璃砖透明方形彩色热熔实心玻璃砖磨砂水晶砖玄关隔断墙bbb 大宝
图片尺寸565x800
玻璃砖美缝之你需要注意的事儿
图片尺寸1080x1439
最全的玻璃砖知识大放送~来了解透光不透视的玻璃砖
图片尺寸900x1286
玻璃砖的3种施工工艺
图片尺寸1080x888
玻璃砖隔断施工做法玻璃砖隔断怎么设计
图片尺寸560x420
玻璃砖支架的使用方法 以及玻璃砖的施工方法
图片尺寸1127x845
玻璃砖安装
图片尺寸320x300
永红路业主家瓦工师傅今天施工的砌玻璃砖
图片尺寸864x1151