瑜伽看户型

瑜伽战士式有几式,初学者可以练吗
图片尺寸340x340
昆明信达万科京江隐翠售楼处电话丨房价户型图昆明购房最新政策
图片尺寸1080x2338
浦发虹湾上海浦发虹湾指定网站浦发虹湾欢迎您价格户型容积率周边配套
图片尺寸1080x1916
生活美学馆杭州绿城汀桂里售楼处电话地址户型24小时电话
图片尺寸1080x1299
无锡楼盘蠡湖国际小镇详情摘要蠡湖国际小镇房价户型容积率小区环境
图片尺寸1040x1186
大华星曜闵行浦江镇大华星曜楼盘详情大华星曜房价户型容积率小区环境
图片尺寸1080x1080
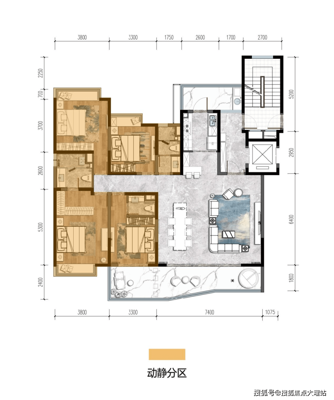
(绿城·随州桃李春风380㎡户型二层平面图)
图片尺寸970x924
无锡楼盘蠡湖国际小镇详情摘要蠡湖国际小镇房价户型容积率小区环境
图片尺寸1080x1192
上实和风院上实和风院欢迎您上海上实和风院首页网站楼盘详情价格户型
图片尺寸1080x2109
昆明滇池一英里首页网站滇池一英里房价户型价格滇池一英里规划
图片尺寸1080x1418
紫城铂翠云邸嘉兴紫城铂翠云邸最新房价房型图户型图交通地铁楼盘地址
图片尺寸641x719
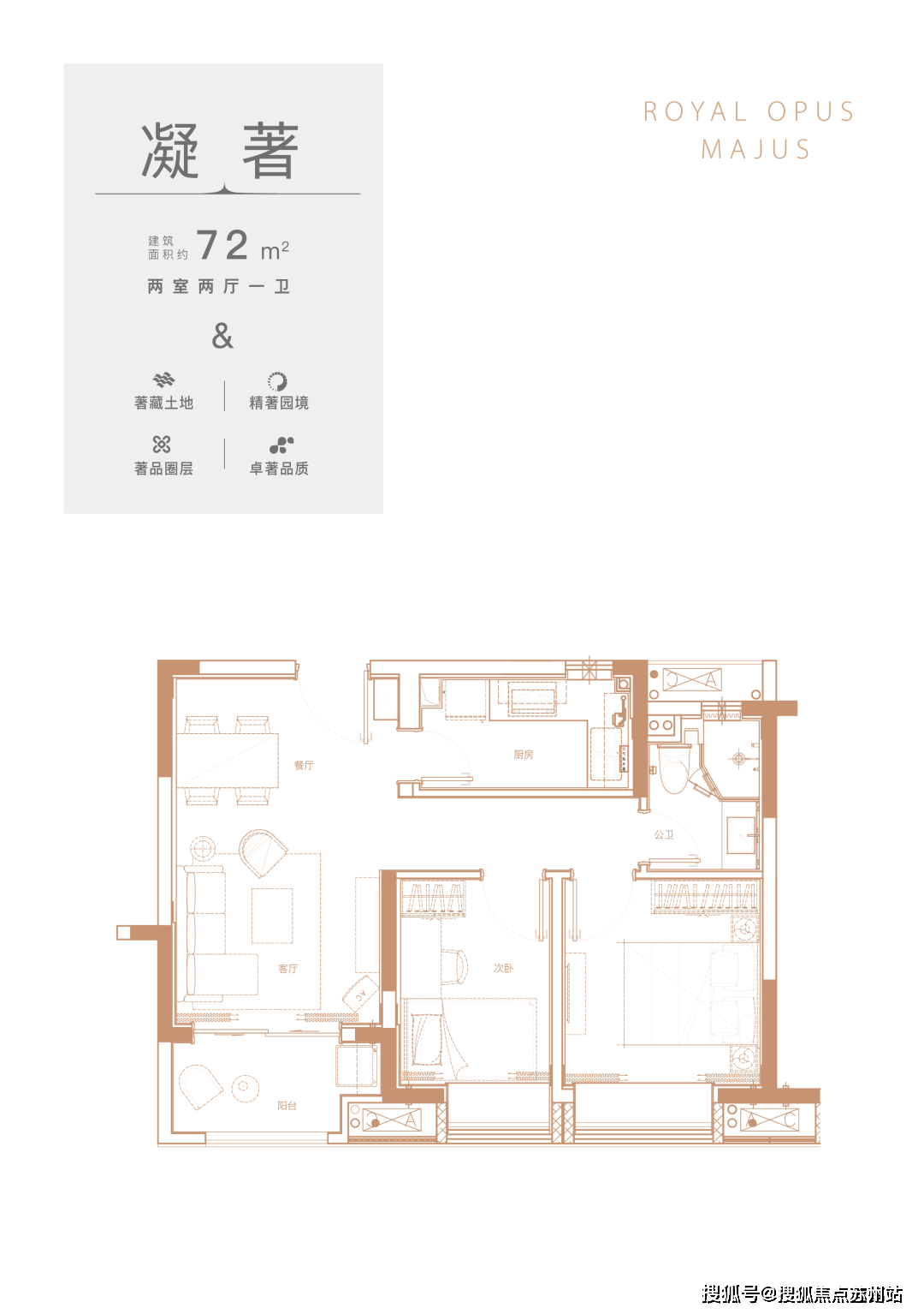
新华御著新华御著上海金山搜狐首页网站售楼处电话户型容积率小区环境
图片尺寸1080x1534
深圳花润里售楼处电话光明盈润来花润里在售户型最新房价折扣配套交房
图片尺寸1080x1392
花润里深圳首页网站丨花润里楼盘详情房价户型详情
图片尺寸1080x1418
同样是小户型你家怎么那么优秀
图片尺寸1080x762
佛山【金地熙悦】最新价格_户型_楼盘详情_售楼处电话‖佛山新房_规划
图片尺寸790x1072
昆明华夏四季售楼电话售楼处2024年华夏四季最新消息户型位置配套
图片尺寸1080x1294
浦发虹湾浦发虹湾首页网站丨上海浦东浦发虹湾楼盘详情价格户型配套
图片尺寸520x769
珑樾山深圳南山珑樾山首页网站丨方直珑樾山最新房价户型地址楼盘详情
图片尺寸1080x1860
建滔菁庭昆山陆家建滔菁庭楼盘详情丨房价户型图交通小区环境
图片尺寸1080x1324