砌体加筋

看看我家的师傅是如何做到的
图片尺寸900x1200
砖砌体6@2通长做法
图片尺寸3022x4030
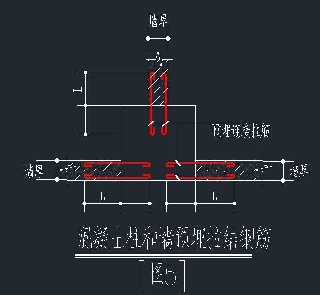
砌体加筋
图片尺寸660x609
绵阳装修南城誉峰施工新砌墙体植入钢筋增加墙体抗拉伸强度
图片尺寸1080x1440
63#楼一层二次结构砌体砌筑完成.机房层模板加固,梁板钢筋绑扎完成40%
图片尺寸3000x2000
龙瑞装饰砌墙工艺分享
图片尺寸850x1511
砌体加筋和砌体通长筋的区别是什么
图片尺寸500x310
一文详解装修全流程,40天可入住
图片尺寸550x360
砌墙加筋
图片尺寸1080x1440
同济装饰罕见内部工艺标准!
图片尺寸590x675
砌体质量砼一次成型质量卫生间反坎加固主体结构楼层成品保护华夏故都
图片尺寸1080x1440
部分砌体拉结筋发生位移,锚固长度不足1层部分构造柱顶植筋数量不足1
图片尺寸914x584
砌体拉结筋按规范植入,砌体工作进行中
图片尺寸1200x1600
砌体加筋和砌体通长筋的区别是什么
图片尺寸500x370
砌体加筋和砌体通长筋的区别是什么
图片尺寸500x372
提高蒸压加气块砌体砌筑质量的4种方法你们都用过吗
图片尺寸708x527
砌砖3人 41#楼a区屋架模板安装2人 2# 52#楼三层砌体大工8人小工4人
图片尺寸1999x2665
砌墙为什么要植筋
图片尺寸600x417
砌墙植筋的作用是什么
图片尺寸511x382
2017填充墙砌体检验批原始记录范例填写说明
图片尺寸800x600