立面配筋图

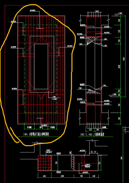
请问防爆门框墙立面配筋如何设置需要在左右上下结构中设置吗
图片尺寸546x772
钢筋混凝土梁结构详图能显示混凝土内部钢筋配置的投影图称为配筋图.
图片尺寸1024x1312
框架立面配筋图
图片尺寸750x526
闸室立面配筋图
图片尺寸812x579
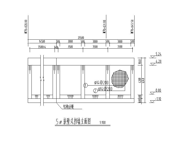
扶壁式挡土墙配筋设计图
图片尺寸759x580
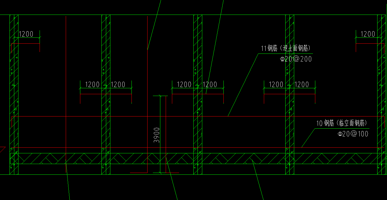
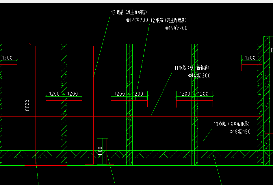
立面板配筋图中水平配筋有两个标注的情况立面高度一半以下配筋取大值
图片尺寸945x640
测立面图
图片尺寸1169x920
基础短柱配筋立面
图片尺寸560x420
图示内容钢筋混凝土梁的形状较简单,一般不用画出模板图,只画配筋立面
图片尺寸1222x1890
立面板配筋图中水平配筋有两个标注的情况立面高度一半以下配筋取大值
图片尺寸1301x673
一榀框架配筋图正立面图图纸参数图纸id: 1086478图纸格式:dwg图纸
图片尺寸841x594
基础梁配筋图背立面图基础布置配筋图二层平面图大样图1-1剖面图1-1
图片尺寸841x594
立面钢筋布置
图片尺寸820x656
> 钢筋配筋图图中,从上至下分别为: 梁的配筋断面图, 配筋立面图
图片尺寸537x618
看懂图示钢筋混凝土梁配筋图中的立面图,填空回答下列问题
图片尺寸463x357![[分享]大门门卫立面图资料免费下载](https://imgs.wantubizhi.com/img/ADDA3C5D760C6828B77B505A29D43E83AA515AD1230D6EF72BC488E257ACD6F1235F9272D31E138C375B5AE085C0008D785B66F024C1579CF3FE7227F1B7E538E46FA8E33E9CCBCA4C515F24BDC39BFBB3D35A5A5DF0978F95D54863E4143286)
[分享]大门门卫立面图资料免费下载
图片尺寸560x420
中墩配筋立面
图片尺寸560x357
加暗柱 暗柱剖面 技术 信念 配筋平面图 暗柱立面 36
图片尺寸1080x810
擅长按样图手绘建筑工程平面图,剖面图,立面图,大样图,构造图,配筋图
图片尺寸1080x808
立面图
图片尺寸760x570